For Sale By Auction | 9:30, 15 October 2024 | Lot 118

160 Victoria Road, Netherfield, Nottingham, Nottinghamshire, NG4 2JF

Sold £108,000

  • Terraced House
  • 4 Bedrooms
  • Tenure: Freehold

Call the team on 020 7625 9007 for more information

Auction Date

Tue 15/10/2024

Auction Time

9:30

Auction Venue

Live Stream

Viewing Times:

Thu 3 Oct

11:00-11:30

Tue 8 Oct

11:00-11:30

Thu 10 Oct

11:00-11:30

Sat 12 Oct

11:00-11:30

Mon 14 Oct

11:00-11:30

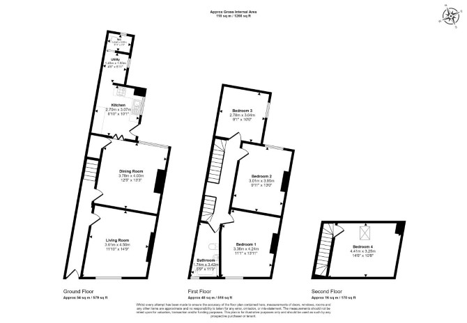
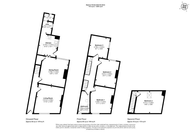
A Vacant Four Bedroom Mid Terrace House

The property comprises a four bedroom mid terrace house arranged over ground and two upper floors.

Tenure

Freehold

6 Week Completion Available

Location

The property is situated on a residential road close to local shops and amenities. The open spaces of Ley Street Playing Fields are within easy reach. Transport links are provided by Carlton rail station.

Accommodation

Ground Floor Two Reception Rooms Kitchen Utility Room WC First Floor Three Bedrooms Bathroom Second Floor Bedroom

Exterior

The property benefits from a rear garden.

Energy Efficiency Rating (EPC)

Current Rating D

Services

Interested parties are requested to make their own enquiries to the relevant authorities as to the availability of services.

Important Notice to Prospective Buyers:

We draw your attention to the Special Conditions of Sale within the Legal Pack, referring to other charges in addition to the purchase price which may become payable. Such costs may include Search Fees, reimbursement of Sellers costs and Legal Fees, and Transfer Fees amongst others.

Additional Fees

Administration Charge - Purchasers will be required to pay an administration fee of £1,800 inc VAT

Disbursements - Please see the legal pack for any disbursements listed that may become payable by the purchaser on completion.

View Larger Map

Disclaimer: The map preview provided above is for general guidance only and may not accurately reflect the exact location or surrounding buildings. Prospective buyers and interested parties are strongly advised to independently verify the precise location and surroundings before bidding.