For Sale By Auction | 9:30, 15 October 2024 | Lot 124

28B The Market Place, Falloden Way, Hampstead Garden Suburb, London, NW11 6JJ

Sold £110,000

  • Flat
  • 4 Bedrooms
  • Tenure: Leasehold. The property is held on a 99 year lease from 26th June 1931 (thus approximately 6 years unexpired).

Call the team on 020 7625 9007 for more information

Auction Date

Tue 15/10/2024

Auction Time

9:30

Auction Venue

Live Stream

Viewing Times:

Thu 3 Oct

12:00-12:30

Mon 7 Oct

12:00-12:30

Wed 9 Oct

12:00-12:30

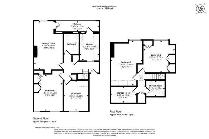
A Second and Third Floor Four Bedroom Split Level Flat Subject to an Assured Shorthold Tenancy Producing £19,200 Per Annum

The property comprises a second and third floor four bedroom split level flat situated within a mid terrace building arranged over ground and three upper floors.

Tenure

Leasehold. The property is held on a 99 year lease from 26th June 1931 (thus approximately 6 years unexpired).

Location

The property is situated on a residential road close to local shops and amenities. The open spaces of Lyttelton Playing Fields are within easy reach. Transport links are provided by East Finchley underground station (Northern line).

Accommodation

Second Floor Reception Room Kitchen Two Bedrooms Bathroom First Floor Two Bedrooms Bathroom

Exterior

The property benefits from a private balcony.

Tenancy

The property is subject to an Assured Shorthold Tenancy at a rent of £1,600 per calendar month.

Energy Efficiency Rating (EPC)

Current Rating D

Services

Interested parties are requested to make their own enquiries to the relevant authorities as to the availability of services.

Important Notice to Prospective Buyers:

We draw your attention to the Special Conditions of Sale within the Legal Pack, referring to other charges in addition to the purchase price which may become payable. Such costs may include Search Fees, reimbursement of Sellers costs and Legal Fees, and Transfer Fees amongst others.

Additional Fees

Administration Charge - Purchasers will be required to pay an administration fee of £1,800 inc VAT

Disbursements - Please see the legal pack for any disbursements listed that may become payable by the purchaser on completion.

View Larger Map

Disclaimer: The map preview provided above is for general guidance only and may not accurately reflect the exact location or surrounding buildings. Prospective buyers and interested parties are strongly advised to independently verify the precise location and surroundings before bidding.