For Sale By Auction | 9:30, 15 October 2024 | Lot 71

52 Bond Street, Trowbridge, Wiltshire, BA14 0AS

Sold £133,000

  • Retail Property (high street)
  • 1 Bedroom
  • Tenure: Freehold

Call the team on 020 7625 9007 for more information

Auction Date

Tue 15/10/2024

Auction Time

9:30

Auction Venue

Live Stream

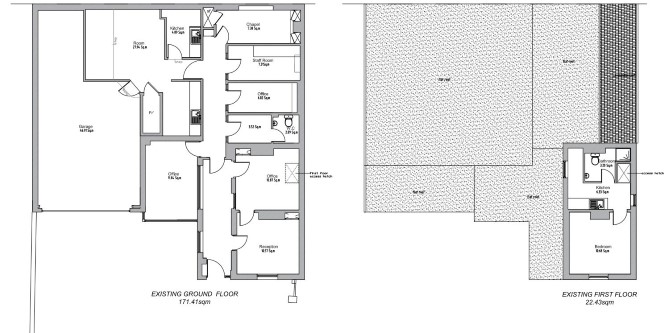
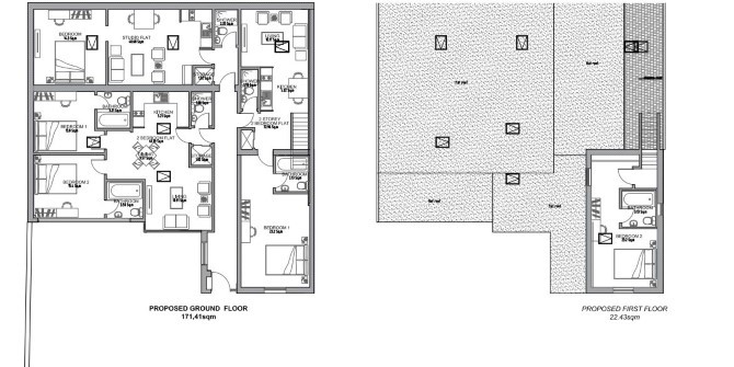
A Vacant End of Terrace Commercial Building. A Prior Approval Planning Application has been Submitted to Convert the Building to Provide Three Flats (2 x Two Bedrooms, 1 x Studio).

The property comprises an end of terrace building arranged to provide a ground floor retail unit with first floor ancillary space.

Tenure

Freehold

Location

The property is situated on a mixed use road close to local shops and amenities. The open spaces of Biss Meadow Country Park are within easy reach. Transport links are provided by Trowbridge rail station.

Accommodation

Ground Floor Reception Room Kitchen 5 x Office Rooms Chapel Room WC First Floor Bedroom Kitchen Bathroom G.I.A. Approximately 194 sq m

Exterior

The property benefits from a large adjoining garage

Planning

A Prior Approval Planning Application has been Submitted to Convert the Building to Provide Three Flats (2 x Two Bedrooms, 1 x Studio). Total GIA of Proposed Development is Approximately 194 sq m

The property has not been inspected by Auction House London. All information has been supplied by the vendor.

Energy Efficiency Rating (EPC)

Current Rating C

Services

Interested parties are requested to make their own enquiries to the relevant authorities as to the availability of services.

Important Notice to Prospective Buyers:

We draw your attention to the Special Conditions of Sale within the Legal Pack, referring to other charges in addition to the purchase price which may become payable. Such costs may include Search Fees, reimbursement of Sellers costs and Legal Fees, and Transfer Fees amongst others.

Additional Fees

Administration Charge - Purchasers will be required to pay an administration fee of £1,800 inc VAT

Disbursements - Please see the legal pack for any disbursements listed that may become payable by the purchaser on completion.

View Larger Map

Disclaimer: The map preview provided above is for general guidance only and may not accurately reflect the exact location or surrounding buildings. Prospective buyers and interested parties are strongly advised to independently verify the precise location and surroundings before bidding.