Withdrawn | Lot 82A

41 Sydenham Road, Sydenham, London, SE26 5EX

Withdrawn

  • Flat
  • 4 Bedrooms
  • Tenure: Leasehold. The property is held on a 999 year lease from 2024.

Call the team on 020 7625 9007 for more information

Auction Date

Tue 15/10/2024

Auction Time

9:30

Auction Venue

Live Stream

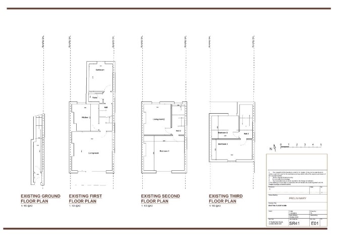
A Vacant First, Second and Third Floor Four Bedroom Split Level Flat Currently Registered as an HMO.

The property comprises a first, second and third floor four bedroom split level flat situated within a mid terrace building arranged over ground and three upper floors. Plans have been drawn up for the current HMO to be refurbished and re-configured to provide 6 en-suite bedrooms and two communal kitchens.Auction House London make no representations or warranties with regard to this scheme and/or the validity of the aforementioned plans. Buyers must rely on their own enquiries with regard to any development potential, permissions required and any previous planning history in respect of this site.

Tenure

Leasehold. The property is held on a 999 year lease from 2024.

Location

The property is situated on a residential road close to local shops and amenities. The open spaces of Mayow Park are within easy reach. Transport links are provided by Sydenham overground and rail stations.

Accommodation

First Floor Reception Room Kitchen Bathroom Separate WC Second Floor Two Bedrooms Third Floor Two Bedrooms

Exterior

The property benefits from a balcony

G.I.A: 1,350 Sq Ft (125 sq m)

Energy Efficiency Rating (EPC)

Current Rating E

Services

Interested parties are requested to make their own enquiries to the relevant authorities as to the availability of services.

Important Notice to Prospective Buyers:

We draw your attention to the Special Conditions of Sale within the Legal Pack, referring to other charges in addition to the purchase price which may become payable. Such costs may include Search Fees, reimbursement of Sellers costs and Legal Fees, and Transfer Fees amongst others.

Additional Fees

Administration Charge - Purchasers will be required to pay an administration fee of £1,800 inc VAT

Disbursements - Please see the legal pack for any disbursements listed that may become payable by the purchaser on completion.

View Larger Map

Disclaimer: The map preview provided above is for general guidance only and may not accurately reflect the exact location or surrounding buildings. Prospective buyers and interested parties are strongly advised to independently verify the precise location and surroundings before bidding.