For Sale By Auction | 10:00, 16 October 2024 | Lot 155A

32 Clarendon Road, Gravesend, Kent, DA12 2BP

*Guide | £220,000+ (plus fees)

  • End of Terrace House
  • 2 Bedrooms
  • Tenure: Freehold

Call the team on 020 7625 9007 for more information

Auction Date

Wed 16/10/2024

Auction Time

10:00

Auction Venue

Live Stream

Viewing Times:

Tue 8 Oct

12:00-12:30

Fri 11 Oct

13:00-13:30

Sat 12 Oct

12:00-12:30

Mon 14 Oct

10:00-10:30

A Vacant Two Bedroom End of Terrace House. Plans Have Been Drawn Up for the Property to be Converted into an HMO.

The property comprises a two bedroom end of terrace house arranged over ground and first floors. Plans have been drawn up to convert the property to a six bedroom HMO. No planning application has been submitted for this scheme. Drawings of the proposed plans are available for inspection upon request. Auction House London make no representations or warranties with regard to this scheme and/or the validity of the aforementioned plans. Buyers must rely on their own enquiries with regard to any development potential, permissions required and any previous planning history in respect of this site.

Tenure

Freehold

Location

The property is situated on a residential road close to local shops and amenities. The open spaces of Gordon Park are within easy reach. Transport links are provided by Gravesend rail station.

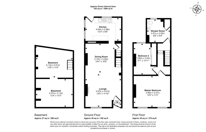
Accommodation

Basement Floor Cellar Ground Floor Two Reception Rooms Kitchen First Floor Two Bedrooms Bathroom

Exterior

The property benefits from a rear garden.

Energy Efficiency Rating (EPC)

Current Rating F

Services

Interested parties are requested to make their own enquiries to the relevant authorities as to the availability of services.

Important Notice to Prospective Buyers:

We draw your attention to the Special Conditions of Sale within the Legal Pack, referring to other charges in addition to the purchase price which may become payable. Such costs may include Search Fees, reimbursement of Sellers costs and Legal Fees, and Transfer Fees amongst others.

Additional Fees

Administration Charge - Purchasers will be required to pay an administration fee of £1,800 inc VAT

Disbursements - Please see the legal pack for any disbursements listed that may become payable by the purchaser on completion.

View Larger Map

Disclaimer: The map preview provided above is for general guidance only and may not accurately reflect the exact location or surrounding buildings. Prospective buyers and interested parties are strongly advised to independently verify the precise location and surroundings before bidding.