Withdrawn | Lot 146

Flat 17 Beechwood Lodge, Doncaster Road, Rotherham, South Yorkshire, S65 2BJ

Withdrawn

  • Flat
  • 1 Bedroom
  • Tenure: Leasehold. The property is held on a 125 year lease from 29th September 1984 (thus approximately 85 years unexpired).

Call the team on 020 7625 9007 for more information

Auction Date

Thu 14/11/2024

Auction Time

10:30

Auction Venue

Live Stream

Viewing Times:

Sat 2 Nov

12:00-12:30

Sat 9 Nov

12:00-12:30

Tue 12 Nov

12:00-12:30

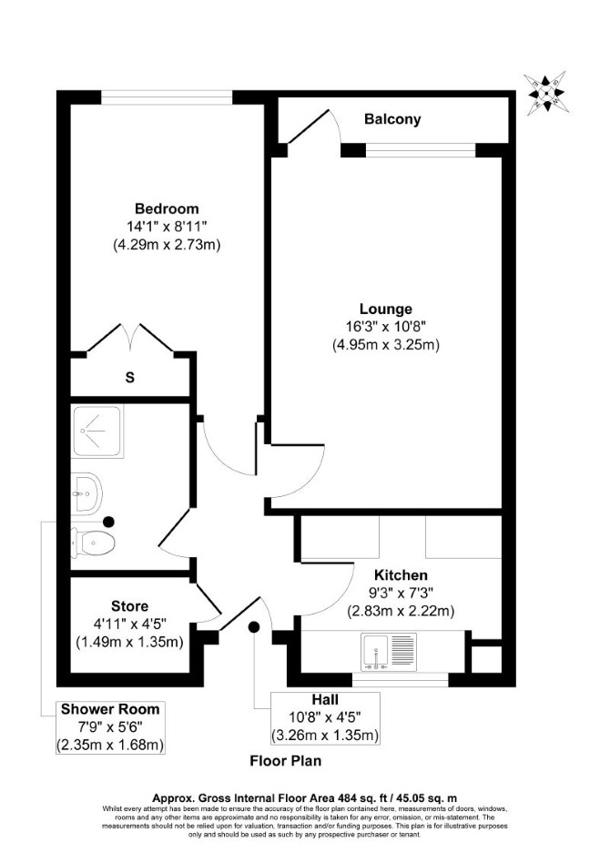
A Vacant Ground Floor One Bedroom Flat

The property comprises a ground floor one bedroom flat situated within a purpose built building arranged over ground and five upper floors. The property requires a program of refurbishment.

Tenure

Leasehold. The property is held on a 125 year lease from 29th September 1984 (thus approximately 85 years unexpired).

By Order of the Executors

Location

The property is situated on a residential road close to local shops and amenities. The open spaces of Clifton Park are within easy reach. Transport links are provided by Rotherham Central rail station.

Accommodation

Ground Floor Reception Room Kitchen Bedroom Bathroom

Energy Efficiency Rating (EPC)

Current Rating D

Services

Interested parties are requested to make their own enquiries to the relevant authorities as to the availability of services.

Important Notice to Prospective Buyers:

We draw your attention to the Special Conditions of Sale within the Legal Pack, referring to other charges in addition to the purchase price which may become payable. Such costs may include Search Fees, reimbursement of Sellers costs and Legal Fees, and Transfer Fees amongst others.

Additional Fees

Administration Charge - Purchasers will be required to pay an administration fee of £1,800 inc VAT

Disbursements - Please see the legal pack for any disbursements listed that may become payable by the purchaser on completion.

View Larger Map

Disclaimer: The map preview provided above is for general guidance only and may not accurately reflect the exact location or surrounding buildings. Prospective buyers and interested parties are strongly advised to independently verify the precise location and surroundings before bidding.