For Sale By Auction | 10:00, 13 November 2024 | Lot 69

4 Saunders Yard, Austin Fields, King's Lynn, PE30 1PH

Sold £87,000

  • Commercial Property
  • Tenure: Freehold

Call the team on 020 7625 9007 for more information

Auction Date

Wed 13/11/2024

Auction Time

10:00

Auction Venue

Live Stream

Viewing Times:

Fri 1 Nov

11:00-11:30

Tue 5 Nov

11:00-11:30

Sat 9 Nov

11:00-11:30

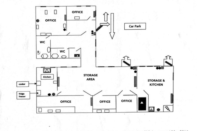
A Detached Building Arranged to Provide Three Interconnected Office Units Subject to a Lease Producing £12,000 Per Annum

The property comprises a detached building arranged to provide three interconnected office units arranging over the ground floor.

Tenure

Freehold

Location

The property is situated on a mixed use road close to local shops and amenities. The open spaces of Loke Road Recreation are within easy reach. Transport links are provided by King's Lynn rail station.

Accommodation

Ground Floor Multiple Office Rooms Two Kitchens Two WCs

Exterior

The property benefits from allocated parking spaces and bike railing.

Tenancy

The property is subject to a lease for a term of 3 years from 1st July 2024 at a rent of £1,000 per calendar month.

Services

Interested parties are requested to make their own enquiries to the relevant authorities as to the availability of services.

Important Notice to Prospective Buyers:

We draw your attention to the Special Conditions of Sale within the Legal Pack, referring to other charges in addition to the purchase price which may become payable. Such costs may include Search Fees, reimbursement of Sellers costs and Legal Fees, and Transfer Fees amongst others.

Additional Fees

Administration Charge - Purchasers will be required to pay an administration fee of £1,800 inc VAT

Disbursements - Please see the legal pack for any disbursements listed that may become payable by the purchaser on completion.

View Larger Map

Disclaimer: The map preview provided above is for general guidance only and may not accurately reflect the exact location or surrounding buildings. Prospective buyers and interested parties are strongly advised to independently verify the precise location and surroundings before bidding.