For Sale By Auction | 10:00, 13 November 2024 | Lot 39

15 Alexandra Road, Crosby, Liverpool, Merseyside, L23 7TA

Sold After

  • Semi-Detached House
  • 6 Bedrooms
  • Tenure: Freehold

Call the team on 020 7625 9007 for more information

Auction Date

Wed 13/11/2024

Auction Time

10:00

Auction Venue

Live Stream

Viewing Times:

Thu 31 Oct

12:00-12:30

Sat 2 Nov

12:00-12:30

Wed 6 Nov

12:00-12:30

Fri 8 Nov

12:00-12:30

Thu 14 Nov

14:30-15:00

A Substantial Vacant Seven Bedroom Semi Detached House. Potential for Rear Extension (Subject to Obtaining all Relevant Consents)

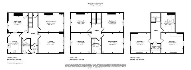
The property comprises a seven bedroom semi detached house arranged over ground and two upper floors. The property requires a program of refurbishment.

Tenure

Freehold

Location

The property is situated on a residential road close to local shops and amenities. The open spaces of Alexandra Park are within easy reach. Transport links are provided by Blundellsands & Crosby rail station.

Accommodation

Ground Floor Two Reception Rooms Kitchen Dining Room First Floor Four Bedrooms Bathroom Second Floor Three Bedrooms

Exterior

The property benefits from both front and rear gardens and off-street parking.

Services

Interested parties are requested to make their own enquiries to the relevant authorities as to the availability of services.

Important Notice to Prospective Buyers:

We draw your attention to the Special Conditions of Sale within the Legal Pack, referring to other charges in addition to the purchase price which may become payable. Such costs may include Search Fees, reimbursement of Sellers costs and Legal Fees, and Transfer Fees amongst others.

Additional Fees

Administration Charge - Purchasers will be required to pay an administration fee of £1,800 inc VAT

Disbursements - Please see the legal pack for any disbursements listed that may become payable by the purchaser on completion.

View Larger Map

Disclaimer: The map preview provided above is for general guidance only and may not accurately reflect the exact location or surrounding buildings. Prospective buyers and interested parties are strongly advised to independently verify the precise location and surroundings before bidding.