For Sale By Auction | 10:00, 13 November 2024 | Lot 35A

191 Icknield Way, Luton, Bedfordshire, LU3 2JL

Sold £241,000

  • Semi-Detached House
  • 2 Bedrooms
  • Tenure: Freehold

Call the team on 020 7625 9007 for more information

Auction Date

Wed 13/11/2024

Auction Time

10:00

Auction Venue

Live Stream

Viewing Times:

Thu 31 Oct

14:15-14:45

Sat 2 Nov

13:00-13:30

Mon 4 Nov

14:15-14:45

Wed 6 Nov

14:15-14:45

Fri 8 Nov

14:15-14:45

Tue 12 Nov

14:15-14:45

A Vacant Two Bedroom Semi Detached House

The property comprises a two bedroom semi detached house arranged over ground and first floors.

Tenure

Freehold

Location

The property is situated on a residential road close to local shops and amenities. The open spaces of Icknield Way Play Area are within easy reach. Transport links are provided by Luton rail station.

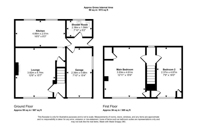
Accommodation

Ground Floor Reception Room Kitchen Shower Room First Floor Two Bedrooms

Exterior

The property benefits from a garage, a rear garden and off street parking.

Energy Efficiency Rating (EPC)

Current Rating E

Services

Interested parties are requested to make their own enquiries to the relevant authorities as to the availability of services.

Important Notice to Prospective Buyers:

We draw your attention to the Special Conditions of Sale within the Legal Pack, referring to other charges in addition to the purchase price which may become payable. Such costs may include Search Fees, reimbursement of Sellers costs and Legal Fees, and Transfer Fees amongst others.

Additional Fees

Administration Charge - Purchasers will be required to pay an administration fee of £1,800 inc VAT

Disbursements - Please see the legal pack for any disbursements listed that may become payable by the purchaser on completion.

View Larger Map

Disclaimer: The map preview provided above is for general guidance only and may not accurately reflect the exact location or surrounding buildings. Prospective buyers and interested parties are strongly advised to independently verify the precise location and surroundings before bidding.