For Sale By Auction | 09:00, 11 December 2024 | Lot 144

262 Dowdeswell Close, Putney, London, SW15 5RN

Sold £266,000

  • Flat
  • 3 Bedrooms
  • Tenure: Leasehold. The property is held on a 125 year lease from 23rd January 1989 (thus approximately 89 years unexpired).

Call the team on 020 7625 9007 for more information

Auction Date

Wed 11/12/2024

Auction Time

09:00

Auction Venue

Live Stream

Viewing Times:

Wed 27 Nov

14:45-15:15

Fri 29 Nov

14:45-15:15

Sat 30 Nov

14:15-14:45

Tue 3 Dec

14:45-15:15

Thu 5 Dec

14:00-14:30

Mon 9 Dec

14:00-14:30

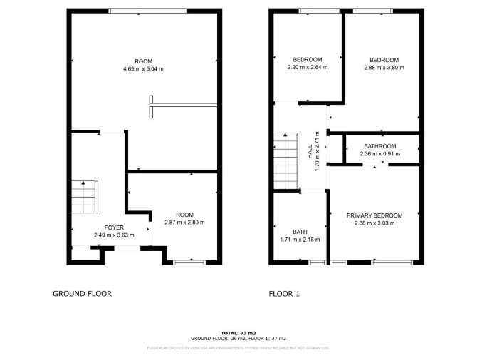
A Third and Fourth Floor Three Bedroom Split Level Flat

The property comprises a three bedroom split level flat situated within a purpose built building arranged over ground and three upper floors. The property requires a full program of refurbishment.

Tenure

Leasehold. The property is held on a 125 year lease from 23rd January 1989 (thus approximately 89 years unexpired).

Location

The property is situated on a residential road close to local shops and amenities. The open spaces of Palewell Park are within easy reach. Transport links are provided by Barnes rail station.

Accommodation

Third Floor Open Plan Reception and Kitchen (Removed) Fourth Floor Three Bedrooms (One With En-Suite - Removed) Bathroom (Removed)

Exterior

The property benefits from communal gardens.

Energy Efficiency Rating (EPC)

Current Rating G

Services

Interested parties are requested to make their own enquiries to the relevant authorities as to the availability of services.

Important Notice to Prospective Buyers:

We draw your attention to the Special Conditions of Sale within the Legal Pack, referring to other charges in addition to the purchase price which may become payable. Such costs may include Search Fees, reimbursement of Sellers costs and Legal Fees, and Transfer Fees amongst others.

Additional Fees

Administration Charge - Purchasers will be required to pay an administration fee of £1,800 inc VAT

Disbursements - Please see the legal pack for any disbursements listed that may become payable by the purchaser on completion.

View Larger Map

Disclaimer: The map preview provided above is for general guidance only and may not accurately reflect the exact location or surrounding buildings. Prospective buyers and interested parties are strongly advised to independently verify the precise location and surroundings before bidding.