For Sale By Auction | 9:00, 12 December 2024 | Lot 183

Store Room at 98 Petherton Road, Highbury, London, N5 2RG

Sold £16,000

  • Flat
  • Tenure: Leasehold. The property will be held on a new 999 year lease.

Call the team on 020 7625 9007 for more information

Auction Date

Thu 12/12/2024

Auction Time

9:00

Auction Venue

Live Stream

Viewing Times:

Sat 7 Dec

12:00-12:30

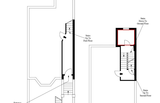
A First Floor Store Room Subject to a Tenancy Producing £1,200 Per Annum

The property comprises a first floor store room situated within a mid terrace building arranged over lower ground, ground and three upper floors.

Tenure

Leasehold. The property will be held on a new 999 year lease.

Location

The property is situated on a residential road close to local shops and amenities. The open spaces of Clissold Park are within easy reach. Transport links are provided by Arsenal underground station (Piccadilly line) and Drayton Park rail station.

Accommodation

First Floor Store Room G.I.A Measuring Approximately 47 sq ft

Tenancy

The property is subject to a Tenancy at a rent of £100 per calendar month.

Services

Interested parties are requested to make their own enquiries to the relevant authorities as to the availability of services.

Important Notice to Prospective Buyers:

We draw your attention to the Special Conditions of Sale within the Legal Pack, referring to other charges in addition to the purchase price which may become payable. Such costs may include Search Fees, reimbursement of Sellers costs and Legal Fees, and Transfer Fees amongst others.

Additional Fees

Administration Charge - Purchasers will be required to pay an administration fee of £1,800 inc VAT

Disbursements - Please see the legal pack for any disbursements listed that may become payable by the purchaser on completion.

View Larger Map

Disclaimer: The map preview provided above is for general guidance only and may not accurately reflect the exact location or surrounding buildings. Prospective buyers and interested parties are strongly advised to independently verify the precise location and surroundings before bidding.