Withdrawn | Lot 195A

31 Leicester Road, East Finchley, London, N2 9DY

Withdrawn

  • Semi-Detached House
  • 4 Bedrooms
  • Tenure: Freehold

Call the team on 020 7625 9007 for more information

Auction Date

Thu 12/12/2024

Auction Time

9:00

Auction Venue

Live Stream

Viewing Times:

Thu 28 Nov

13:30-14:00

Mon 2 Dec

13:30-14:00

Wed 4 Dec

13:30-14:00

Fri 6 Dec

13:30-14:00

Tue 10 Dec

13:30-14:00

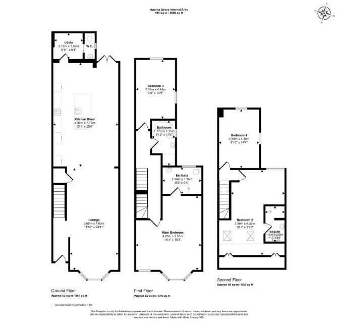
A Substantial Vacant Four Bedroom Semi Detached House

The property comprises a four bedroom semi detached house arranged over ground and two upper floors.

Tenure

Freehold

Location

The property is situated on a residential road close to local shops and amenities. The open spaces of Cherry Tree Wood are within easy reach. Transport links are provided by East Finchley underground station (Northern line) and Alexandra Palace rail station.

Accommodation

Ground Floor Through Reception Room with Open-Plan Kitchen Utility Room WC First Floor Two Bedrooms (One with En-Suite) Bathroom Second Floor Two Bedrooms (One with En-Suite) GIA Approximately: 200 sq m (2,152 sq ft)

Exterior

The property benefits from a rear garden.

Energy Efficiency Rating (EPC)

Current Rating D

Services

Interested parties are requested to make their own enquiries to the relevant authorities as to the availability of services.

Important Notice to Prospective Buyers:

We draw your attention to the Special Conditions of Sale within the Legal Pack, referring to other charges in addition to the purchase price which may become payable. Such costs may include Search Fees, reimbursement of Sellers costs and Legal Fees, and Transfer Fees amongst others.

Additional Fees

Administration Charge - Purchasers will be required to pay an administration fee of £1,800 inc VAT

Disbursements - Please see the legal pack for any disbursements listed that may become payable by the purchaser on completion.

View Larger Map

Disclaimer: The map preview provided above is for general guidance only and may not accurately reflect the exact location or surrounding buildings. Prospective buyers and interested parties are strongly advised to independently verify the precise location and surroundings before bidding.