For Sale By Auction | 9:00, 12 December 2024 | Lot 213A

Flat 98 City View, Axon Place, Ilford, Essex, IG1 1NH

Sold £238,000

  • Flat
  • 2 Bedrooms
  • Tenure: Leasehold. The property is held on a 155 year lease from 1st June 2004 (thus approximately 134 years unexpired).

Call the team on 020 7625 9007 for more information

Auction Date

Thu 12/12/2024

Auction Time

9:00

Auction Venue

Live Stream

Viewing Times:

Mon 2 Dec

09:00-09:30

Wed 4 Dec

09:00-09:30

Fri 6 Dec

09:00-09:30

Tue 10 Dec

09:00-09:30

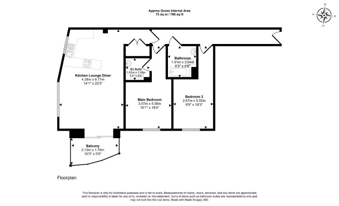
A Second Floor Two Bedroom Flat

The property comprises a second floor two bedroom flat situated within a purpose built block arranged over ground and fourteen upper floors.

Tenure

Leasehold. The property is held on a 155 year lease from 1st June 2004 (thus approximately 134 years unexpired).

Location

The property is situated on a residential road close to local shops and amenities. The open spaces of Valentines Park are within easy reach. Transport links are provided by Newbury Park (Central Line) underground station.

Accommodation

Second Floor Reception Room Kitchen Two Bedrooms Bathroom

Exterior

The property benefits from from a balcony.

Energy Efficiency Rating (EPC)

Current Rating C

Services

Interested parties are requested to make their own enquiries to the relevant authorities as to the availability of services.

Important Notice to Prospective Buyers:

We draw your attention to the Special Conditions of Sale within the Legal Pack, referring to other charges in addition to the purchase price which may become payable. Such costs may include Search Fees, reimbursement of Sellers costs and Legal Fees, and Transfer Fees amongst others.

Additional Fees

Administration Charge - Purchasers will be required to pay an administration fee of £1,800 inc VAT

Disbursements - Please see the legal pack for any disbursements listed that may become payable by the purchaser on completion.

View Larger Map

Disclaimer: The map preview provided above is for general guidance only and may not accurately reflect the exact location or surrounding buildings. Prospective buyers and interested parties are strongly advised to independently verify the precise location and surroundings before bidding.