For Sale By Auction | 9:00, 12 February 2025 | Lot 20A

22 Rylandes Road, South Croydon, Surrey, CR2 8EA

Sold £462,000

  • Semi-Detached House
  • 3 Bedrooms
  • Tenure: Freehold

Call the team on 020 7625 9007 for more information

Auction Date

Wed 12/02/2025

Auction Time

9:00

Auction Venue

Live Stream

Viewing Times:

Wed 29 Jan

15:30-16:00

Fri 31 Jan

15:30-16:00

Tue 4 Feb

15:30-16:00

Thu 6 Feb

15:30-16:00

Sat 8 Feb

12:00-12:30

Mon 10 Feb

15:30-16:00

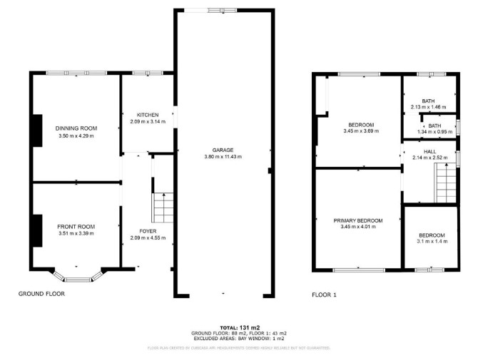
A Vacant Three Bedroom Semi Detached House

The property comprises a three bedroom semi detached house arranged over ground and first floors.

Tenure

Freehold

Location

The property is situated on a residential road close to local shops and amenities. The open spaces of Littleheath Woods are within easy reach. Transport links are provided by Sanderstead rail station.

Accommodation

Ground Floor Two Reception Rooms Kitchen Bathroom First Floor Three Bedrooms Bathroom

Exterior

The property benefits from a garage, both front and rear gardens and off street parking.

Services

Interested parties are requested to make their own enquiries to the relevant authorities as to the availability of services.

Important Notice to Prospective Buyers:

We draw your attention to the Special Conditions of Sale within the Legal Pack, referring to other charges in addition to the purchase price which may become payable. Such costs may include Search Fees, reimbursement of Sellers costs and Legal Fees, and Transfer Fees amongst others.

Additional Fees

Administration Charge - Purchasers will be required to pay an administration fee of £1,800 inc VAT

Disbursements - Please see the legal pack for any disbursements listed that may become payable by the purchaser on completion.

View Larger Map

Disclaimer: The map preview provided above is for general guidance only and may not accurately reflect the exact location or surrounding buildings. Prospective buyers and interested parties are strongly advised to independently verify the precise location and surroundings before bidding.