Withdrawn | Lot 142

Sandly Court, 39 Queens Road, Southport, Merseyside, PR9 9EX

Withdrawn

  • Commercial Property
  • 21 Bedrooms
  • Tenure: Freehold

Call the team on 020 7625 9007 for more information

Auction Date

Wed 12/02/2025

Auction Time

9:00

Auction Venue

Live Stream

Viewing Times:

Tue 4 Feb

12:00-12:30

Sat 8 Feb

10:00-10:30

Tue 11 Feb

12:30-13:00

A Vacant Twenty Three Bedroom Semi Detached Former Care Home. Potential for Conversion or Redevelopment (Subject to Obtaining all Relevant Consents)

The property comprises a twenty three bedroom semi detached care home arranged over lower ground, ground and two upper floors.

Tenure

Freehold

Location

The property is situated on a residential road close to local shops and amenities. The open spaces of Hesketh Park are within easy reach. Transport links are provided by Southport rail station.

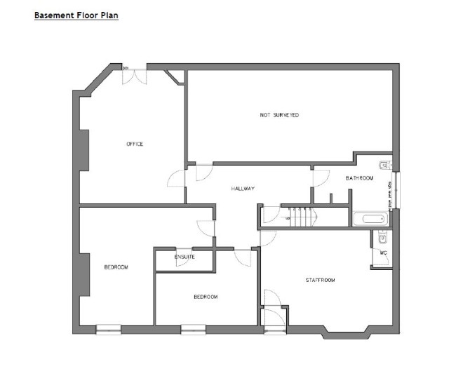
Accommodation

Lower Ground Floor Four Bedrooms (Two with En-Suite) Office Bathroom Ground Floor Two Reception Rooms Kitchen Four Bedrooms(One with En-Suite) Office Two WC's First Floor Reception Room Eight Bedrooms (Four with En-Suites) Two Bathrooms Second Floor Seven Bedrooms (One with En-Suite) Bathroom WC Store Room

Exterior

The property benefits from communal gardens and off street parking.

Energy Efficiency Rating (EPC)

Current Rating C

Services

Interested parties are requested to make their own enquiries to the relevant authorities as to the availability of services.

Important Notice to Prospective Buyers:

We draw your attention to the Special Conditions of Sale within the Legal Pack, referring to other charges in addition to the purchase price which may become payable. Such costs may include Search Fees, reimbursement of Sellers costs and Legal Fees, and Transfer Fees amongst others.

Additional Fees

Administration Charge - Purchasers will be required to pay an administration fee of £1,800 inc VAT

Disbursements - Please see the legal pack for any disbursements listed that may become payable by the purchaser on completion.

View Larger Map

Disclaimer: The map preview provided above is for general guidance only and may not accurately reflect the exact location or surrounding buildings. Prospective buyers and interested parties are strongly advised to independently verify the precise location and surroundings before bidding.