For Sale By Auction | 10:00, 13 February 2025 | Lot 269

147 Barrier Point Road, Canning Town, London, E16 2SE

Sold £300,000

  • Flat
  • 2 Bedrooms
  • Tenure: Leasehold. The property is held on a 999 year lease from 1st June 1998 (thus approximately 973 years unexpired).

Call the team on 020 7625 9007 for more information

Auction Date

Thu 13/02/2025

Auction Time

10:00

Auction Venue

Live Stream

Viewing Times:

Thu 30 Jan

16:45-17:15

Mon 3 Feb

16:45-17:15

Wed 5 Feb

16:45-17:15

Fri 7 Feb

16:45-17:15

Sat 8 Feb

12:30-13:00

Tue 11 Feb

16:45-17:15

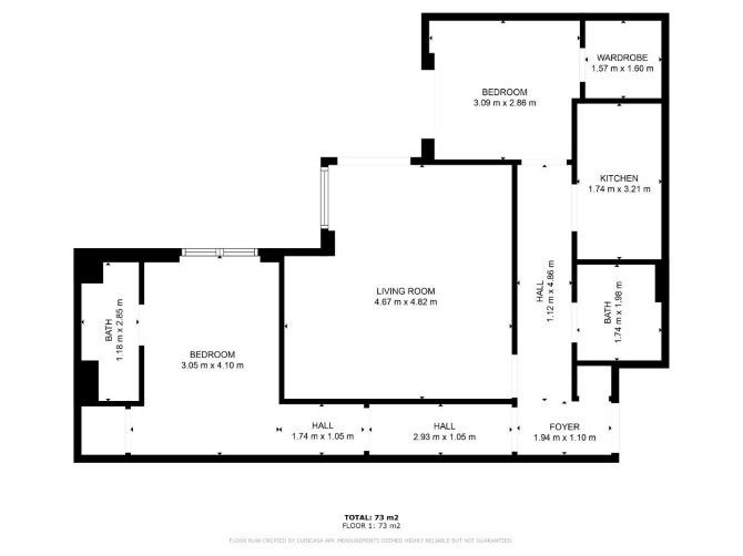
A Third Floor Two Bedroom Flat

The property comprises a third floor two bedroom flat situated within a purpose built building arranged over ground and five upper floors.

Tenure

Leasehold. The property is held on a 999 year lease from 1st June 1998 (thus approximately 973 years unexpired).

Location

The property is situated on a residential road close to local shops and amenities. The open spaces of Thames Barrier Park are within easy reach. Transport links are provided by Custom House underground station (Elizabeth line).

Accommodation

Third Floor Reception Room Kitchen Two Bedrooms (One With En Suite) Bathroom

Exterior

The property benefits from a balcony.

Energy Efficiency Rating (EPC)

Current Rating C

Services

Interested parties are requested to make their own enquiries to the relevant authorities as to the availability of services.

Important Notice to Prospective Buyers:

We draw your attention to the Special Conditions of Sale within the Legal Pack, referring to other charges in addition to the purchase price which may become payable. Such costs may include Search Fees, reimbursement of Sellers costs and Legal Fees, and Transfer Fees amongst others.

Additional Fees

Administration Charge - Purchasers will be required to pay an administration fee of £1,800 inc VAT

Disbursements - Please see the legal pack for any disbursements listed that may become payable by the purchaser on completion.

View Larger Map

Disclaimer: The map preview provided above is for general guidance only and may not accurately reflect the exact location or surrounding buildings. Prospective buyers and interested parties are strongly advised to independently verify the precise location and surroundings before bidding.