For Sale By Auction | 10:00, 13 February 2025 | Lot 240A

Flat 1, 54 North Side Wandsworth Common, Wandsworth, London, SW18 2SL

*Guide | £565,000+ (plus fees)

  • Flat
  • 2 Bedrooms
  • Tenure: Leasehold. The property is held on a 189 year lease from 29th September 1988 (thus approximately 152 years unexpired).

Call the team on 020 7625 9007 for more information

Auction Date

Thu 13/02/2025

Auction Time

10:00

Auction Venue

Live Stream

Viewing Times:

Fri 31 Jan

11:00-11:30

Fri 7 Feb

13:00-13:30

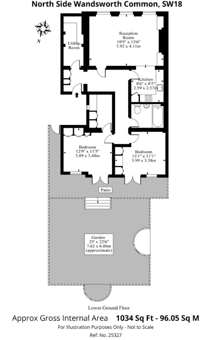
A Vacant Lower Ground Floor Two Bedroom Flat

The property comprises a lower ground floor two bedroom flat situated within a detached detached building arranged over lower ground and second floors.

Tenure

Leasehold. The property is held on a 189 year lease from 29th September 1988 (thus approximately 152 years unexpired).

Location

The property is situated on a residential road close to local shops and amenities. The open spaces of Wandsworth Common are within easy reach. Transport links are provided by Southfields underground station (District line) and Wandsworth Town rail station.

Accommodation

Lower Ground Floor Reception Room Kitchen Two Bedrooms Bathroom Utility Room

Exterior

The property benefits from a private garden.

Energy Efficiency Rating (EPC)

Current Rating D

Services

Interested parties are requested to make their own enquiries to the relevant authorities as to the availability of services.

Important Notice to Prospective Buyers:

We draw your attention to the Special Conditions of Sale within the Legal Pack, referring to other charges in addition to the purchase price which may become payable. Such costs may include Search Fees, reimbursement of Sellers costs and Legal Fees, and Transfer Fees amongst others.

Additional Fees

Administration Charge - Purchasers will be required to pay an administration fee of £1,800 inc VAT

Disbursements - Please see the legal pack for any disbursements listed that may become payable by the purchaser on completion.

View Larger Map

Disclaimer: The map preview provided above is for general guidance only and may not accurately reflect the exact location or surrounding buildings. Prospective buyers and interested parties are strongly advised to independently verify the precise location and surroundings before bidding.