Withdrawn | Lot 177

43 Seymour Villas, Penge, London, SE20 8TR

Withdrawn

  • Flat
  • 3 Bedrooms
  • Tenure: Leasehold. The property is held on a 125 year lease from October 1982 (thus approximately 83 years unexpired).

Call the team on 020 7625 9007 for more information

Auction Date

Thu 20/03/2025

Auction Time

10:00

Auction Venue

Live Stream

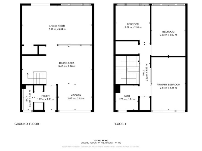
A Ground and First Floor Three Bedroom Split Level Flat Subject to a Periodic Tenancy Producing £10,800 Per Annum

The property comprises a ground and first floor split level three bedroom flat situated within a purpose built building arranged over ground and three upper floors.

Tenure

Leasehold. The property is held on a 125 year lease from October 1982 (thus approximately 83 years unexpired).

By Order of the LPA Receivers

Location

The property is situated on a residential road close to local shops and amenities. The open spaces of Betts Park are within easy reach. Transport links are provided by Anerley overground and rail station.

Accommodation

Ground Floor Reception Room Kitchen W/C First Floor Three Bedrooms Bathroom

Exterior

The property benefits from a private yard

Tenancy

The property is subject to an Periodic Tenancy (Holding Over) at a rent of £900 per calendar month.

Energy Efficiency Rating (EPC)

Current Rating C

Services

Interested parties are requested to make their own enquiries to the relevant authorities as to the availability of services.

Important Notice to Prospective Buyers:

We draw your attention to the Special Conditions of Sale within the Legal Pack, referring to other charges in addition to the purchase price which may become payable. Such costs may include Search Fees, reimbursement of Sellers costs and Legal Fees, and Transfer Fees amongst others.

Additional Fees

Administration Charge - Purchasers will be required to pay an administration fee of £1,800 inc VAT

Disbursements - Please see the legal pack for any disbursements listed that may become payable by the purchaser on completion.

View Larger Map

Disclaimer: The map preview provided above is for general guidance only and may not accurately reflect the exact location or surrounding buildings. Prospective buyers and interested parties are strongly advised to independently verify the precise location and surroundings before bidding.