Sold Prior | Lot 216

34 Meadow Street & 5 Alexandra Parade, Weston-super-Mare, North Somerset, BS23 1QQ

Sold Prior

  • Block of Apartments
  • 7 Bedrooms
  • Tenure: Freehold

Call the team on 020 7625 9007 for more information

Auction Date

Thu 29/05/2025

Auction Time

10:00

Auction Venue

Live Stream

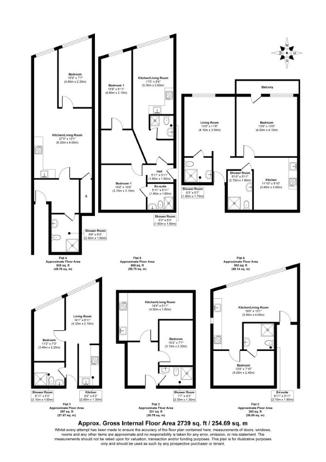
A Mid Terrace Double Fronted Building Arranged to Provide a Large Ground Floor Retail Unit and Six Flats (5 x One Bedroom, 1 x Two Bedroom) on the First and Second Floors. A Lease for the Ground Floor Shop has been Agreed (Not Signed) at a Rent of £34,500 Per Annum Subject to Change of Use.

The property comprises a mid terrace double fronted building with double road frontage arranged to provide a ground floor shop and five flats (5 x one bedroom, 1 x two bedroom) on the first and second floors.

Tenure

Freehold

Location

The property is situated on a mixed use road close to local shops and amenities. Nearby multiples include Boots, Tesco and McDonalds. The open spaces of Grove Park are within easy reach. Transport links are provided by Weston-super-Mare rail station.

Accommodation

Ground Floor Retail Unit (A1 Use) - Approx G.I.A: 250 sq m First Floor Flats 1 and 2 Reception Room with Kitchenette Bedroom Bathroom Flat 3 Reception Room with Kitchentte Bedroom (with En-Suite) Second Floor Flat 4 and 6 Reception Room with Kitchenette Bedroom Bathroom Flat 5 Reception Room with Kitchenette Two Bedrooms (One with En-Suite) Bathroom

Exterior

Flat 6 benefits from a private balcony.

Services

Interested parties are requested to make their own enquiries to the relevant authorities as to the availability of services.

Important Notice to Prospective Buyers:

We draw your attention to the Special Conditions of Sale within the Legal Pack, referring to other charges in addition to the purchase price which may become payable. Such costs may include Search Fees, reimbursement of Sellers costs and Legal Fees, and Transfer Fees amongst others.

Additional Fees

Administration Charge - Purchasers will be required to pay an administration fee of £1,800 inc VAT

Disbursements - Please see the legal pack for any disbursements listed that may become payable by the purchaser on completion.

View Larger Map

Disclaimer: The map preview provided above is for general guidance only and may not accurately reflect the exact location or surrounding buildings. Prospective buyers and interested parties are strongly advised to independently verify the precise location and surroundings before bidding.