For Sale By Auction | 09:30, 28 May 2025 | Lot 105A

424A Sutton Road, Southend-on-Sea, Essex, SS2 5EZ

Sold £100,000

  • Flat
  • 1 Bedroom
  • Tenure: Leasehold. The property is held on a 99 year lease from 1st January 2007 (thus approximately 80 years unexpired).

Call the team on 020 7625 9007 for more information

Auction Date

Wed 28/05/2025

Auction Time

09:30

Auction Venue

Live Stream

Viewing Times:

Wed 21 May

11:00-11:30

Sat 24 May

11:00-11:30

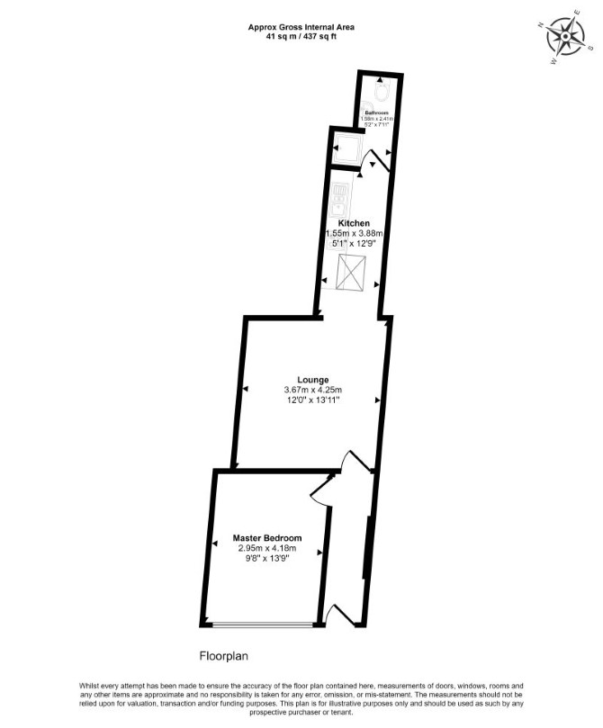
A Ground Floor One Bedroom Flat Subject to an Assured Shorthold Tenancy Producing £15,000 Per Annum

The property comprises a ground floor one bedroom flat situated within a mid-terrace building arranged over ground and first floors.

Tenure

Leasehold. The property is held on a 99 year lease from 1st January 2007 (thus approximately 80 years unexpired).

Location

The property is situated on a residential road in Southend-on-Sea close to local shops and amenities. The open spaces of Priory Park are within easy reach. Transport links are provided by Prittlewell rail station.

Accommodation

Ground Floor Reception Room Kitchen Bedroom Shower Room

Tenancy

The property is subject to an Assured Shorthold Tenancy at a rent of £1,250 per calendar month.

Further Information

When purchasing a flat that has a short lease, it is important to understand that in addition to the purchase price, if you wish to extend the lease to 90+ years, you will need to pay a premium to the freeholder. This is done by way of serving a Section 42 notice to the freeholder requesting a lease extension with a suggested price for the extension. The freeholder has the right to refuse the offer and submit a counter notice with their suggested price. If you do not fully understand this process, please ask the auctioneers or a solicitor.

Energy Efficiency Rating (EPC)

Current Rating C

Services

Interested parties are requested to make their own enquiries to the relevant authorities as to the availability of services.

Important Notice to Prospective Buyers:

We draw your attention to the Special Conditions of Sale within the Legal Pack, referring to other charges in addition to the purchase price which may become payable. Such costs may include Search Fees, reimbursement of Sellers costs and Legal Fees, and Transfer Fees amongst others.

Additional Fees

Administration Charge - Purchasers will be required to pay an administration fee of £1,800 inc VAT

Disbursements - Please see the legal pack for any disbursements listed that may become payable by the purchaser on completion.

View Larger Map

Disclaimer: The map preview provided above is for general guidance only and may not accurately reflect the exact location or surrounding buildings. Prospective buyers and interested parties are strongly advised to independently verify the precise location and surroundings before bidding.