For Sale By Auction | 10:00, 03 July 2025 | Lot 194

8 Station Terrace, Blackpool, Lancashire, FY4 1HT

*Guide | £110,000+ (plus fees)

  • Mixed Use
  • 7 Bedrooms
  • Tenure: Freehold

Call the team on 020 7625 9007 for more information

Auction Date

Thu 03/07/2025

Auction Time

10:00

Auction Venue

Live Stream

Viewing Times:

Mon 30 Jun

12:00-12:30

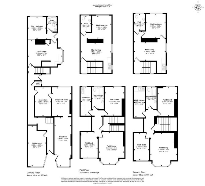
A Vacant End of Terrace Building Arranged to Provide a Ground Floor Retail Unit and Five Flats (3 x One Bedroom, 2 x Two Bedroom)

The property comprises an end of terrace building arranged to provide a ground floor retail unit and five flats (3 x one bedroom, 2 x two bedroom) across ground and two upper floors.

Tenure

Freehold

Location

The property is situated on a mixed use road close to local shops and amenities. The open spaces of Blackpool Pleasure Beach are within easy reach. Transport links are provided by Blackpool South rail station.

Accommodation

Ground Floor Retail Unit Office Flat 4 Reception Room with Open-Plan Kitchen Bedroom Bathroom First Floor Flat 1 Reception Room Kitchen Two Bedrooms Bathroom Flat 5 Reception Room with Open-Plan Kitchen Bedroom Bathroom Second Floor Flat 2 Reception Room Kitchen Two Bedrooms Bathroom Flat 6 Reception Room with Open-Plan Kitchen Bedroom Bathroom

Services

Interested parties are requested to make their own enquiries to the relevant authorities as to the availability of services.

Important Notice to Prospective Buyers:

We draw your attention to the Special Conditions of Sale within the Legal Pack, referring to other charges in addition to the purchase price which may become payable. Such costs may include Search Fees, reimbursement of Sellers costs and Legal Fees, and Transfer Fees amongst others.

Additional Fees

Administration Charge - Purchasers will be required to pay an administration fee of £1,800 inc VAT

Disbursements - Please see the legal pack for any disbursements listed that may become payable by the purchaser on completion.

View Larger Map

Disclaimer: The map preview provided above is for general guidance only and may not accurately reflect the exact location or surrounding buildings. Prospective buyers and interested parties are strongly advised to independently verify the precise location and surroundings before bidding.