For Sale By Auction | 10:00, 07 August 2025 | Lot 176

255A Oxlow Lane, Dagenham, Essex, RM10 7YR

Sold £140,000

  • Flat
  • 2 Bedrooms
  • Tenure: Leasehold. The property is held on a 99 year lease from 29th September 1987 (thus approximately 62 years unexpired).

Call the team on 020 7625 9007 for more information

Auction Date

Thu 07/08/2025

Auction Time

10:00

Auction Venue

Live Stream

Viewing Times:

Thu 24 Jul

11:45-12:15

Sat 26 Jul

12:30-13:00

Mon 28 Jul

11:45-12:15

Wed 30 Jul

11:45-12:15

Fri 1 Aug

11:45-12:15

Tue 5 Aug

11:45-12:15

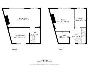
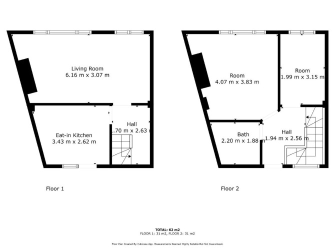
A First and Second Floor Split Level Two Bedroom Flat

The property comprises a first and second floor two bedroom split level flat within a mixed use parade arranged over ground and two upper floors.

Tenure

Leasehold. The property is held on a 99 year lease from 29th September 1987 (thus approximately 62 years unexpired).

Location

The property is situated on a residential road close to local shops and amenities. The open spaces of Eastbrookend Country Park are within easy reach. Transport links are provided by Dagenham East underground station (District line).

Accommodation

First Floor Reception Room Kitchen Second Floor Two Bedrooms Bathroom

Further Information

When purchasing a flat that has a short lease, it is important to understand that in addition to the purchase price, if you wish to extend the lease to 90+ years, you will need to pay a premium to the freeholder. This is done by way of serving a Section 42 notice to the freeholder requesting a lease extension with a suggested price for the extension. The freeholder has the right to refuse the offer and submit a counter notice with their suggested price. If you do not fully understand this process, please ask the auctioneers or a solicitor.

Energy Efficiency Rating (EPC)

Current Rating D

Services

Interested parties are requested to make their own enquiries to the relevant authorities as to the availability of services.

Important Notice to Prospective Buyers:

We draw your attention to the Special Conditions of Sale within the Legal Pack, referring to other charges in addition to the purchase price which may become payable. Such costs may include Search Fees, reimbursement of Sellers costs and Legal Fees, and Transfer Fees amongst others.

Additional Fees

Administration Charge - Purchasers will be required to pay an administration fee of £1,800 inc VAT

Disbursements - Please see the legal pack for any disbursements listed that may become payable by the purchaser on completion.

View Larger Map

Disclaimer: The map preview provided above is for general guidance only and may not accurately reflect the exact location or surrounding buildings. Prospective buyers and interested parties are strongly advised to independently verify the precise location and surroundings before bidding.