For Sale By Auction | 09:30, 06 August 2025 | Lot 45

1035 Finchley Road, Temple Fortune, London, NW11 7ES

Sold £350,000

  • Retail Property (high street)
  • Tenure: Freehold

Call the team on 020 7625 9007 for more information

Auction Date

Wed 06/08/2025

Auction Time

09:30

Auction Venue

Live Stream

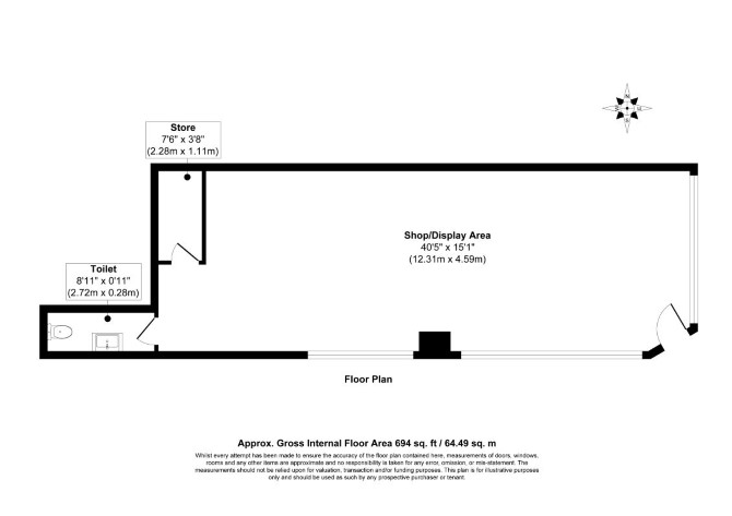
A Mixed Use Corner Building Arranged to Provide a Ground Floor Shop Subject to an FRI Lease Producing £28,000 Per Annum and a First and Second Floor Flat Sold Off on a Long Lease

The property comprises a mixed use corner building arranged to provide a ground floor shop and a first and second floor split level flat.

Tenure

Freehold

Location

The property is situated on a mixed use road close to local shops and amenities. Nearby multiples include, Boots, Shell, Waitrose and M&S Foodhall. The open spaces of Hampstead Heath Extension are within easy reach. Transport links are provided by Golders Green underground station (Northern line) and Hendon rail station.

EPC Ratings

Shop - B

Services

Interested parties are requested to make their own enquiries to the relevant authorities as to the availability of services.

Important Notice to Prospective Buyers:

We draw your attention to the Special Conditions of Sale within the Legal Pack, referring to other charges in addition to the purchase price which may become payable. Such costs may include Search Fees, reimbursement of Sellers costs and Legal Fees, and Transfer Fees amongst others.

Additional Fees

Administration Charge - Purchasers will be required to pay an administration fee of £1,800 inc VAT

Disbursements - Please see the legal pack for any disbursements listed that may become payable by the purchaser on completion.

View Larger Map

Disclaimer: The map preview provided above is for general guidance only and may not accurately reflect the exact location or surrounding buildings. Prospective buyers and interested parties are strongly advised to independently verify the precise location and surroundings before bidding.