For Sale By Auction | 09:30, 06 August 2025 | Lot 81

126 Westcotes Drive, Leicester, Leicestershire, LE3 0QS

Sold £208,000

  • Terraced House
  • Tenure: Freehold

Call the team on 020 7625 9007 for more information

Auction Date

Wed 06/08/2025

Auction Time

09:30

Auction Venue

Live Stream

Viewing Times:

Thu 24 Jul

12:30-13:00

Sat 26 Jul

12:30-13:00

Fri 1 Aug

12:30-13:00

Mon 4 Aug

12:30-13:00

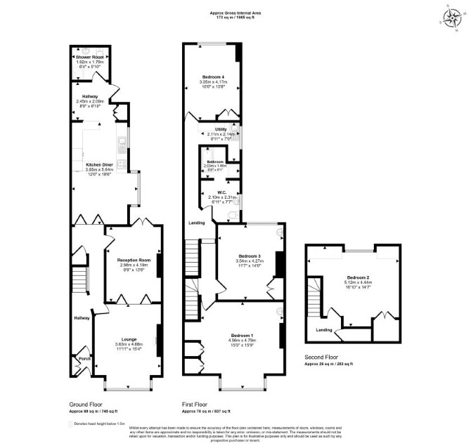
A Vacant Mid Terrace House Loosely Arranged to Provide Two Flats (1 x One/Two Room and 1 x Four Room). Potential To Be Converted Back Into A Single Dwelling (Subject to Obtaining all Relevant Consents)

The property comprises a mid terrace house currently arranged as two flats over ground and two upper floors. The property requires a program of refurbishment.

Tenure

Freehold

Location

The property is situated on a residential road close to local shops and amenities. The open spaces of Castle Park are within easy reach. Transport links are provided by Leicester rail station.

Accommodation

Ground Floor Flat 1 One/Two Rooms Open Plan Kitchen/Dining Room Bathroom First and Second Floor Flat 2 Four Rooms Utility Room Bathroom

Exterior

The property benefits from both front and rear gardens.

Energy Efficiency Rating (EPC)

Current Rating F

Services

Interested parties are requested to make their own enquiries to the relevant authorities as to the availability of services.

Important Notice to Prospective Buyers:

We draw your attention to the Special Conditions of Sale within the Legal Pack, referring to other charges in addition to the purchase price which may become payable. Such costs may include Search Fees, reimbursement of Sellers costs and Legal Fees, and Transfer Fees amongst others.

Additional Fees

Administration Charge - Purchasers will be required to pay an administration fee of £1,800 inc VAT

Disbursements - Please see the legal pack for any disbursements listed that may become payable by the purchaser on completion.

View Larger Map

Disclaimer: The map preview provided above is for general guidance only and may not accurately reflect the exact location or surrounding buildings. Prospective buyers and interested parties are strongly advised to independently verify the precise location and surroundings before bidding.