For Sale By Auction | 09:30, 06 August 2025 | Lot 38A

100 Crockenhill Road, Orpington, Kent, BR5 4DG

Sold £316,000

  • Semi-Detached House
  • 3 Bedrooms
  • Tenure: Freehold

Call the team on 020 7625 9007 for more information

Auction Date

Wed 06/08/2025

Auction Time

09:30

Auction Venue

Live Stream

Viewing Times:

Mon 28 Jul

16:30-17:00

Wed 30 Jul

16:30-17:00

Fri 1 Aug

16:30-17:00

Sat 2 Aug

12:00-12:30

Tue 5 Aug

16:30-17:00

A Vacant Three Bedroom Semi Detached House. Potential for a Rear Extension (Subject to Obtaining all Relevant Consents)

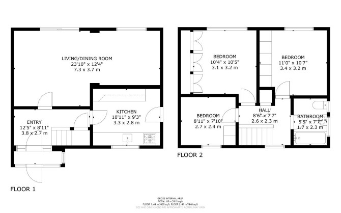
The property comprises a three bedroom semi detached house arranging over ground and first floors. The property requires a program of refurbishment.

Tenure

Freehold

Location

The property is situated on a residential road close to local shops and amenities. The open spaces of St Mary Cary Recreation Ground are within easy reach. Transport links are provided by St Mary Cray rail station.

Accommodation

Ground Floor Through Reception Room Kitchen First Floor Three Bedrooms Bathroom

Exterior

The property benefits from both front and rear gardens and off street parking.

Energy Efficiency Rating (EPC)

Current Rating E

Services

Interested parties are requested to make their own enquiries to the relevant authorities as to the availability of services.

Important Notice to Prospective Buyers:

We draw your attention to the Special Conditions of Sale within the Legal Pack, referring to other charges in addition to the purchase price which may become payable. Such costs may include Search Fees, reimbursement of Sellers costs and Legal Fees, and Transfer Fees amongst others.

Additional Fees

Administration Charge - Purchasers will be required to pay an administration fee of £1,800 inc VAT

Disbursements - Please see the legal pack for any disbursements listed that may become payable by the purchaser on completion.

View Larger Map

Disclaimer: The map preview provided above is for general guidance only and may not accurately reflect the exact location or surrounding buildings. Prospective buyers and interested parties are strongly advised to independently verify the precise location and surroundings before bidding.