Withdrawn | Lot 48A

92 Hillside Gardens, Edgware, Middlesex, HA8 8HD

Withdrawn

  • Semi-Detached House
  • 5 Bedrooms
  • Tenure: Freehold

Call the team on 020 7625 9007 for more information

Auction Date

Wed 06/08/2025

Auction Time

09:30

Auction Venue

Live Stream

Viewing Times:

Wed 30 Jul

15:00-15:30

Fri 1 Aug

15:00-15:30

Sat 2 Aug

11:30-12:00

Tue 5 Aug

15:00-15:30

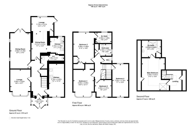
A Vacant Five Bedroom Semi Detached House

The property comprises a five bedroom semi detached house arranging over ground and two upper floors.

Tenure

Freehold

Location

The property is situated on a residential road close to local shops and amenities. The open spaces of Edgwarebury Park are within easy reach. Transport links are provided by Stanmore underground station (Jubilee line) and the M1.

Accommodation

Ground Floor Two Reception Rooms (One with Open-Plan Kitchen) Bedroom Utility Room WC First Floor Four Bedrooms (One with En-Suite) Bathroom Separate WC Second Floor Loft Room

Exterior

The property benefits from a rear garden and off street parking.

Energy Efficiency Rating (EPC)

Current Rating E

Services

Interested parties are requested to make their own enquiries to the relevant authorities as to the availability of services.

Important Notice to Prospective Buyers:

We draw your attention to the Special Conditions of Sale within the Legal Pack, referring to other charges in addition to the purchase price which may become payable. Such costs may include Search Fees, reimbursement of Sellers costs and Legal Fees, and Transfer Fees amongst others.

Additional Fees

Administration Charge - Purchasers will be required to pay an administration fee of £1,800 inc VAT

Disbursements - Please see the legal pack for any disbursements listed that may become payable by the purchaser on completion.

View Larger Map

Disclaimer: The map preview provided above is for general guidance only and may not accurately reflect the exact location or surrounding buildings. Prospective buyers and interested parties are strongly advised to independently verify the precise location and surroundings before bidding.