For Sale By Auction | 09:30, 10 September 2025 | Lot 11

51 Harvist Road, Queen's Park, London, NW6 6EX

*Guide | £1,500,000+ (plus fees)

  • Terraced House
  • 4 Bedrooms
  • Tenure: Freehold

Call the team on 020 7625 9007 for more information

Auction Date

Wed 10/09/2025

Auction Time

09:30

Auction Venue

Live Stream

Viewing Times:

Fri 22 Aug

10:30-11:30

Tue 26 Aug

10:30-11:00

Sat 30 Aug

10:30-11:00

Tue 2 Sep

10:30-11:00

Fri 5 Sep

13:00-13:30

Sat 6 Sep

10:30-11:00

Tue 9 Sep

14:00-14:30

A Vacant Four Bedroom Mid Terrace House. Potential for Development (Subject to Obtaining all Relevant Consents)

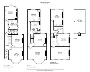
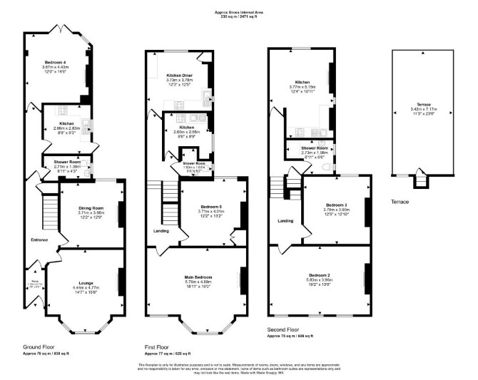
The property comprises a four bedroom mid terrace house arranged over ground and two upper floors.

Tenure

Freehold

First Time on the Market in Over 50 years

Location

The property is situated on a residential road close to local shops and amenities. The open spaces of Queen's Park are within easy reach. Transport links are provided by Queen's Park underground (Bakerloo line) and overground stations.

Accommodation

Ground Floor Three Reception Rooms Kitchen Bathroom First Floor Two Kitchens Two Bedrooms Bathroom Second Floor Reception Room with Open-Plan Kitchen Two Bedrooms Bathroom

Exterior

The property benefits from off street parking and a rear garden.

The property is subject to an enforcement notice requiring the property to be converted back into a single dwelling.

Energy Efficiency Rating (EPC)

Current Rating D

Services

Interested parties are requested to make their own enquiries to the relevant authorities as to the availability of services.

Important Notice to Prospective Buyers:

We draw your attention to the Special Conditions of Sale within the Legal Pack, referring to other charges in addition to the purchase price which may become payable. Such costs may include Search Fees, reimbursement of Sellers costs and Legal Fees, and Transfer Fees amongst others.

Additional Fees

Administration Charge - Purchasers will be required to pay an administration fee of £1,800 inc VAT

Disbursements - Please see the legal pack for any disbursements listed that may become payable by the purchaser on completion.

View Larger Map

Disclaimer: The map preview provided above is for general guidance only and may not accurately reflect the exact location or surrounding buildings. Prospective buyers and interested parties are strongly advised to independently verify the precise location and surroundings before bidding.