Withdrawn | Lot 108

6 Wheatlands Road, Tooting, London, SW17 8BB

Withdrawn

  • Flat
  • 4 Bedrooms
  • Tenure: Share of Freehold. The property is held on a 250 year lease from 1st January 2019 (thus approximately 243 years unexpired).

Call the team on 020 7625 9007 for more information

Auction Date

Thu 16/10/2025

Auction Time

09:30

Auction Venue

Live Stream

Viewing Times:

Fri 3 Oct

12:30-13:00

Tue 7 Oct

12:30-13:00

Thu 9 Oct

12:30-13:00

Sat 11 Oct

14:45-15:15

Mon 13 Oct

12:30-13:00

Wed 15 Oct

12:30-13:00

Wed 22 Oct

17:00-17:30

A Vacant First Floor Four Bedroom Flat. Offered With Planning Permission for a Loft Extension to Create a Further Two Rooms, Bathroom and a Roof Terrace

The property comprises a first floor four bedroom flat situated within a mid terrace building arranged over ground and first floors. There may be potential to convert the property into two flats (subject to obtaining all relevant consents).

Tenure

Share of Freehold. The property is held on a 250 year lease from 1st January 2019 (thus approximately 243 years unexpired).

Location

The property is situated on a residential road close to local shops and amenities. The open spaces of Tooting Commons are within easy reach. Transport links are provided by Tooting Bec underground station (Northern line).

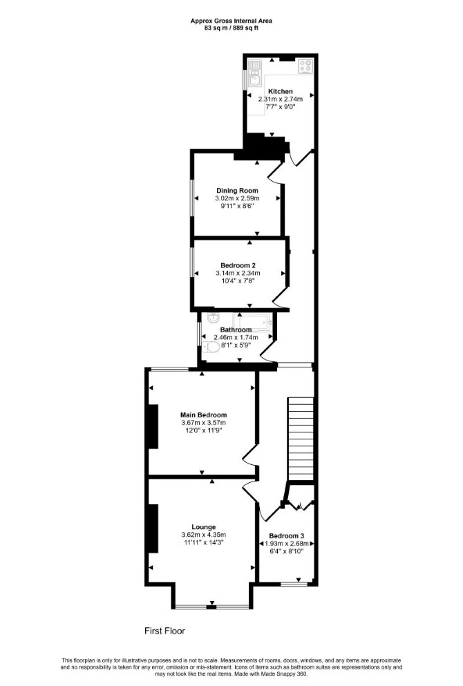
Accommodation

First Floor Reception Room Kitchen Four Bedrooms Bathroom G.I.A Approximately 960 sq ft

Planning

Wandsworth Council granted planning permission (ref: 2023/0099) on 10/03/23 : 'Alterations including erection of a mansard roof extension to the main rear roof; Erection of an extension above part of the two-storey back addition; Formation of a roof terrace with a 1.7m high glazed screen surround above the two-storey back addition'. (subject to freeholders consent)

Energy Efficiency Rating (EPC)

Current Rating D

Services

Interested parties are requested to make their own enquiries to the relevant authorities as to the availability of services.

Important Notice to Prospective Buyers:

We draw your attention to the Special Conditions of Sale within the Legal Pack, referring to other charges in addition to the purchase price which may become payable. Such costs may include Search Fees, reimbursement of Sellers costs and Legal Fees, and Transfer Fees amongst others.

Additional Fees

Administration Charge - Purchasers will be required to pay an administration fee of £1,800 inc VAT

Disbursements - Please see the legal pack for any disbursements listed that may become payable by the purchaser on completion.

View Larger Map

Disclaimer: The map preview provided above is for general guidance only and may not accurately reflect the exact location or surrounding buildings. Prospective buyers and interested parties are strongly advised to independently verify the precise location and surroundings before bidding.