Withdrawn | Lot 23

10 Hyde Lane, Nash Mills, Hemel Hempstead, Hertfordshire, HP3 8RY

Withdrawn

  • Semi-Detached House
  • 3 Bedrooms
  • Tenure: Freehold

Call the team on 020 7625 9007 for more information

Auction Date

Thu 16/10/2025

Auction Time

09:30

Auction Venue

Live Stream

Viewing Times:

Fri 3 Oct

16:45-17:15

Tue 7 Oct

16:45-17:15

Thu 9 Oct

16:45-17:15

Sat 11 Oct

12:00-12:30

Mon 13 Oct

16:45-17:15

Wed 15 Oct

16:45-17:15

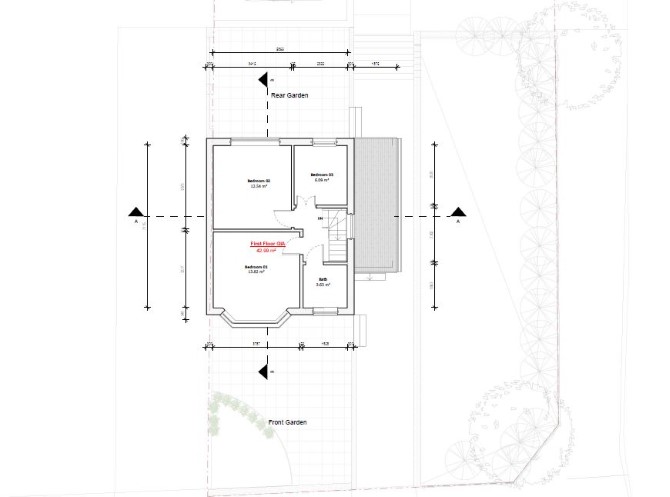
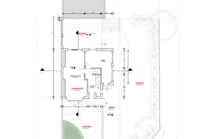
A Vacant Three Bedroom Semi Detached House with a Detached Garage. Offered With Planning Permission for a Two Storey Side Extension and a Loft and Rear Extension to Convert the Existing Property into a Four Bedroom House. Further Plan have been Drawn up for the Erection of an Additonal Five Bedroom House to the Side of the Existing House.

The property comprises a three bedroom semi detached house. Plans have been drawn up for the erection of an additonal house to the side. Auction House London make no representations or warranties with regard to this scheme and/or the validity of the aforementioned plans. Buyers must rely on their own enquiries with regard to any development potential, permissions required and any previous planning history in respect of this site.oom semi detached house arranging over ground and first floors.

Tenure

Freehold

6 Week Completion Available

Accommodation

Ground Floor Through Reception Room Kitchen First Floor Three Bedrooms Bathroom

Exterior

The property benefits from a detached garage, a rear garden and off street parking to the front and rear.

Planning

Three Rivers Borough Council granted the following planning permissions (ref: 25/0421/FUL) on 10/03/2025 : 'Erection of a part single, part two storey side extension', (ref: 25/0461/CLPD) on 7th May 2025 : 'Erection of a single storey rear extension; loft conversion including hip to gable roof alterations and rear dormer and front rooflights', and (ref: 25/0603/PDE) on 12/05/2025 : 'Single storey rear extension (depth 4.70 metres, maximum height 3m, maximum eaves height 3m)'.

Energy Efficiency Rating (EPC)

Current Rating D

Services

Interested parties are requested to make their own enquiries to the relevant authorities as to the availability of services.

Important Notice to Prospective Buyers:

We draw your attention to the Special Conditions of Sale within the Legal Pack, referring to other charges in addition to the purchase price which may become payable. Such costs may include Search Fees, reimbursement of Sellers costs and Legal Fees, and Transfer Fees amongst others.

Additional Fees

Administration Charge - Purchasers will be required to pay an administration fee of £1,800 inc VAT

Disbursements - Please see the legal pack for any disbursements listed that may become payable by the purchaser on completion.

View Larger Map

Disclaimer: The map preview provided above is for general guidance only and may not accurately reflect the exact location or surrounding buildings. Prospective buyers and interested parties are strongly advised to independently verify the precise location and surroundings before bidding.