For Sale By Auction | 10:00, 17 October 2025 | Lot 176

28 Stream Terrace, Stockport, Cheshire, SK1 4AS

Sold £126,000

  • Terraced House
  • 2 Bedrooms
  • Tenure: Long Leasehold. The property is held on a 999 year lease from 11th May 1898 (thus approximately 872 years unexpired).

Call the team on 020 7625 9007 for more information

Auction Date

Fri 17/10/2025

Auction Time

10:00

Auction Venue

Live Stream

Viewing Times:

Wed 8 Oct

12:00-12:30

Sat 11 Oct

12:00-12:30

Wed 15 Oct

12:00-12:30

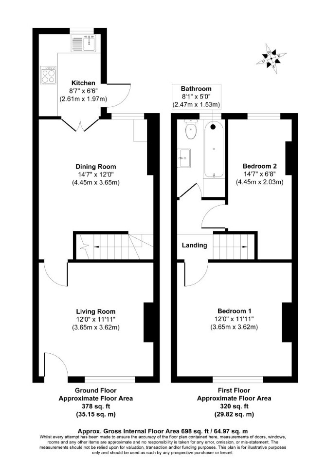
A Vacant Two Bedroom Mid Terrace House

The property comprises a two bedroom mid terrace house arranged over ground and first floors. The property requires a program of refurbishment.

Tenure

Long Leasehold. The property is held on a 999 year lease from 11th May 1898 (thus approximately 872 years unexpired).

By Order of the Executors

Location

The property is situated on a residential road close to local shops and amenities. The open spaces of Vernon Park are within easy reach. Transport links are provided by Stockport rail station.

Accommodation

Ground Floor Two Reception Rooms Kitchen First Floor Two Bedrooms Bathroom

Services

Interested parties are requested to make their own enquiries to the relevant authorities as to the availability of services.

Important Notice to Prospective Buyers:

We draw your attention to the Special Conditions of Sale within the Legal Pack, referring to other charges in addition to the purchase price which may become payable. Such costs may include Search Fees, reimbursement of Sellers costs and Legal Fees, and Transfer Fees amongst others.

Additional Fees

Administration Charge - Purchasers will be required to pay an administration fee of £1,800 inc VAT

Disbursements - Please see the legal pack for any disbursements listed that may become payable by the purchaser on completion.

View Larger Map

Disclaimer: The map preview provided above is for general guidance only and may not accurately reflect the exact location or surrounding buildings. Prospective buyers and interested parties are strongly advised to independently verify the precise location and surroundings before bidding.