Sold Prior | Lot 266

Land at Pallester Court, Wayside, Golders Green, London, NW11 8QY

Sold Prior

  • Land
  • Tenure: Freehold

Call the team on 020 7625 9007 for more information

Auction Date

Fri 17/10/2025

Auction Time

10:00

Auction Venue

Live Stream

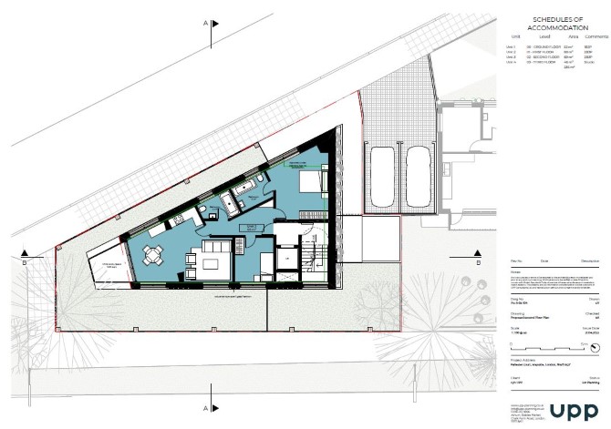
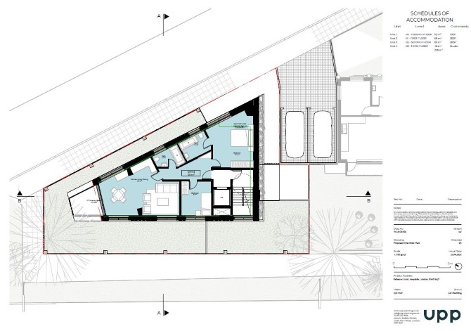
A Plot of Land Measuring Approximately 230 sq m (2,475 sq ft). Offered With Planning Permission for the Erection of a Four Storey Building to Provide Four Self Contained Flats

The lot comprises a plot of land measuring approximately 230 sq m (2,475 sq ft).

Tenure

Freehold

Location

The land is situated on a residential road close to local shops and amenities. The open spaces of Basing Hill Park are within easy reach. Transport links are provided by Brent Cross underground station (Northern line) and West Hampstead Thameslink rail station.

Planning

Barnet Borough Council granted the following planning permission (ref: 24/1542/S73) on 19th July 2024: 'Erection of a four storey building to provide 4no.self-contained flats. Associated cycle parking, amenity space and refuse and cycling storage'.

The site area depicted within the plan in the auction particulars is for indicative purposes only. Additionally, any measurements stated may not be exact. Some or all of the plot may comprise adopted highway land and if the site has trees, there may be Tree Preservation Orders in place. Buyers should rely on their own enquiries with regard to precise measurements, any consents or rights over the land and any possible development potential or alternative uses for this site.

Further Information

All approved documents - https://www.dropbox.com/scl/fo/qiw28jaku7nmu44hexmsz/AL93EvlfipxFhWwE-mkyY4w?rlkey=zjm8e67svix5lhfenx2jrviq2&e=1&dl=0 Invoices - https://www.dropbox.com/scl/fo/h5re93d9nkc5qfyw8ur0w/ANrGbLds3cXQIlq6c97V2zQ/01%20-%20UPP?dl=0&rlkey=lxolo2ox7zniwp35sxp94kxr9&subfolder_nav_tracking=1 Technical package information - https://www.dropbox.com/scl/fo/ngh1jdjx0d1c8cuns0s5u/AGUzh3Q5jfKYRL_MAHqlVGc?rlkey=bi9bsggrt4s6mcnuhtnntie9a&st=gqb39hra&dl=0

Services

Interested parties are requested to make their own enquiries to the relevant authorities as to the availability of services.

Important Notice to Prospective Buyers:

We draw your attention to the Special Conditions of Sale within the Legal Pack, referring to other charges in addition to the purchase price which may become payable. Such costs may include Search Fees, reimbursement of Sellers costs and Legal Fees, and Transfer Fees amongst others.

Additional Fees

Administration Charge - Purchasers will be required to pay an administration fee of £1,800 inc VAT

Disbursements - Please see the legal pack for any disbursements listed that may become payable by the purchaser on completion.

View Larger Map

Disclaimer: The map preview provided above is for general guidance only and may not accurately reflect the exact location or surrounding buildings. Prospective buyers and interested parties are strongly advised to independently verify the precise location and surroundings before bidding.