For Sale By Auction | 09:30, 16 October 2025 | Lot 68A

72 Charlwood Street, Pimlico, London, SW1V 4PF

*Guide | £2,200,000+ (plus fees)

  • Terraced House
  • 5 Bedrooms
  • Tenure: Freehold

Call the team on 020 7625 9007 for more information

Auction Date

Thu 16/10/2025

Auction Time

09:30

Auction Venue

Live Stream

Viewing Times:

Fri 3 Oct

14:00-14:30

Tue 7 Oct

14:00-14:30

Thu 9 Oct

14:00-14:30

Mon 13 Oct

14:00-14:30

Wed 15 Oct

14:00-14:30

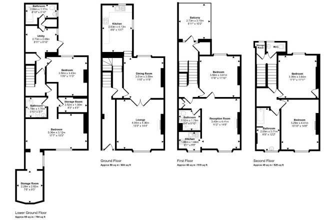
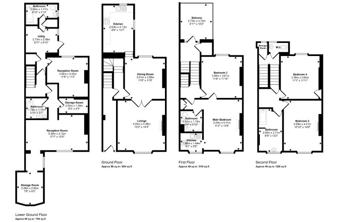
A Well Located Vacant Five Bedroom Mid Terrace House. The Property Benefits from Three Separate Meters and is Subject to Three Council Taxes thus Potential for Conversion into Three or Four Self-Contained Flats (Subject to Obtaining all Relevant Consents).

The property comprises a substantial five bedroom mid terrace house arranged over lower ground, ground and two upper floors. There may be potential for future development as the property benefits from three separate meters and council taxes.

Tenure

Freehold

Location

The property is in the highly sought after area of Pimlico, close to local shops and amenities. The open spaces of St George's Square are within easy reach. Transport links are provided by Pimlico underground station (Victoria line) and Victoria rail station.

Accommodation

Lower Ground Floor Vault Two Bedrooms Two Bathrooms GIA Approximately 704 sq ft Ground Floor Two Reception Rooms Kitchen GIA Approximately 604 sq ft First Floor Open Plan Reception Room/Kitchen Bedroom Bathroom GIA Approximately 519 sq ft Second Floor Two Bedrooms Bathroom Separate WC GIA Approximately 525 sq ft

Exterior

The property benefits from a private terrace and two balconies.

Energy Efficiency Rating (EPC)

Current Rating E

Services

Interested parties are requested to make their own enquiries to the relevant authorities as to the availability of services.

Important Notice to Prospective Buyers:

We draw your attention to the Special Conditions of Sale within the Legal Pack, referring to other charges in addition to the purchase price which may become payable. Such costs may include Search Fees, reimbursement of Sellers costs and Legal Fees, and Transfer Fees amongst others.

Additional Fees

Administration Charge - Purchasers will be required to pay an administration fee of £1,500 inc VAT

Disbursements - Please see the legal pack for any disbursements listed that may become payable by the purchaser on completion.

View Larger Map

Disclaimer: The map preview provided above is for general guidance only and may not accurately reflect the exact location or surrounding buildings. Prospective buyers and interested parties are strongly advised to independently verify the precise location and surroundings before bidding.