For Sale By Auction | 09:30, 16 October 2025 | Lot 85A

Flat 205 Perilla House, 17 Stable Walk, Whitechapel, London, E1 8ZF

*Guide | £450,000+ (plus fees)

  • Flat
  • 1 Bedroom
  • Tenure: Leasehold. The property is held on a 999 year lease from 1st January 2013 (thus approximately 986 years unexpired).

Call the team on 020 7625 9007 for more information

Auction Date

Thu 16/10/2025

Auction Time

09:30

Auction Venue

Live Stream

Viewing Times:

Thu 2 Oct

16:00-16:30

Mon 6 Oct

16:00-16:30

Wed 8 Oct

16:00-16:30

Fri 10 Oct

16:00-16:30

Sat 11 Oct

11:00-11:30

Tue 14 Oct

16:00-16:30

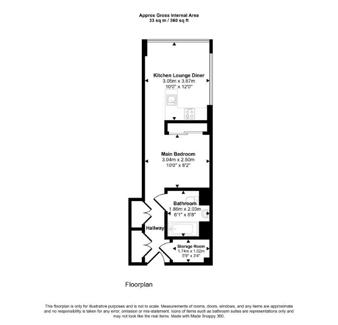
A Vacant Second Floor Large Studio Flat

The property comprises a second floor large studio flat with a divided off sleeping area situated within a purpose built block arranged over ground and six upper floors. The property benefits from communal amenities including; a gym, spa, cinema, swimming pool, a business lounge, a roof terrace, 24 hour concierge and a lift.

Tenure

Leasehold. The property is held on a 999 year lease from 1st January 2013 (thus approximately 986 years unexpired).

Location

The property is situated on a residential road close to local shops and amenities. The open spaces of Altab Ali Park are within easy reach. Transport links are provided by Aldgate East underground station (Circle line) and Fenchurch Street rail station.

Accommodation

Second Floor Reception Room with Open-Plan Kitchen Separate Sleeping Area Bathroom Utility Room G.I.A Approximately 46 sq m / 491 sq ft

Exterior

The property benefits from communal gardens.

Energy Efficiency Rating (EPC)

Current Rating B

Services

Interested parties are requested to make their own enquiries to the relevant authorities as to the availability of services.

Important Notice to Prospective Buyers:

We draw your attention to the Special Conditions of Sale within the Legal Pack, referring to other charges in addition to the purchase price which may become payable. Such costs may include Search Fees, reimbursement of Sellers costs and Legal Fees, and Transfer Fees amongst others.

Additional Fees

Administration Charge - Purchasers will be required to pay an administration fee of £1,800 inc VAT

Disbursements - Please see the legal pack for any disbursements listed that may become payable by the purchaser on completion.

View Larger Map

Disclaimer: The map preview provided above is for general guidance only and may not accurately reflect the exact location or surrounding buildings. Prospective buyers and interested parties are strongly advised to independently verify the precise location and surroundings before bidding.