For Sale By Auction | 10:00, 13 November 2025 | Lot 190

Flat 7, 118 Bolingbroke Grove, Wandsworth, London, SW11 1DA

Sold £400,000

  • Flat
  • 2 Bedrooms
  • Tenure: Leasehold. The property is held on a 99 year lease from 24th June 1983 (thus approximately 56 years unexpired).

Call the team on 020 7625 9007 for more information

Auction Date

Thu 13/11/2025

Auction Time

10:00

Auction Venue

Live Stream

Viewing Times:

Wed 29 Oct

15:45-16:15

Fri 31 Oct

15:45-16:15

Sat 1 Nov

14:30-15:00

Tue 4 Nov

15:45-16:15

Thu 6 Nov

15:45-16:15

Mon 10 Nov

15:45-16:15

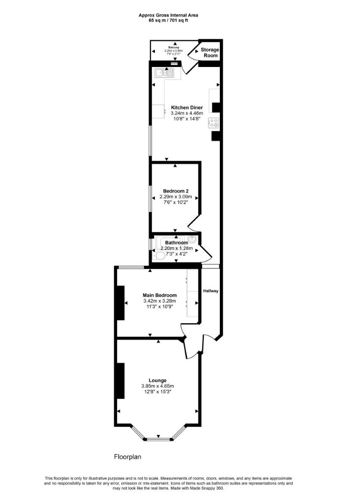
A First Floor Two Bedroom Flat

The property comprises a first floor two bedroom flat situated within a mid terrace building arranged over ground and first floors.

Tenure

Leasehold. The property is held on a 99 year lease from 24th June 1983 (thus approximately 56 years unexpired).

By Order of the LPA Receivers

Location

The property is situated on a residential road close to local shops and amenities. The open spaces of Wandsworth Common are within easy reach. Transport links are provided by Clapham Junction overground station and rail station.

Accommodation

First Floor Reception Room Kitchen Two Bedrooms Bathroom

Further Information

When purchasing a flat that has a short lease, it is important to understand that in addition to the purchase price, if you wish to extend the lease to 90+ years, you will need to pay a premium to the freeholder. This is done by way of serving a Section 42 notice to the freeholder requesting a lease extension with a suggested price for the extension. The freeholder has the right to refuse the offer and submit a counter notice with their suggested price. If you do not fully understand this process, please ask the auctioneers or a solicitor.

Energy Efficiency Rating (EPC)

Current Rating E

Services

Interested parties are requested to make their own enquiries to the relevant authorities as to the availability of services.

Important Notice to Prospective Buyers:

We draw your attention to the Special Conditions of Sale within the Legal Pack, referring to other charges in addition to the purchase price which may become payable. Such costs may include Search Fees, reimbursement of Sellers costs and Legal Fees, and Transfer Fees amongst others.

Additional Fees

Administration Charge - Purchasers will be required to pay an administration fee of £1,800 inc VAT

Disbursements - Please see the legal pack for any disbursements listed that may become payable by the purchaser on completion.

View Larger Map

Disclaimer: The map preview provided above is for general guidance only and may not accurately reflect the exact location or surrounding buildings. Prospective buyers and interested parties are strongly advised to independently verify the precise location and surroundings before bidding.