For Sale By Auction | 09:30, 12 November 2025 | Lot 42

Land at 1 Townsend Cooks Hill, Clutton, Bristol, Avon, BS39 5RD

*Guide | £200,000+ (plus fees)

  • Land
  • Tenure: Freehold

Call the team on 020 7625 9007 for more information

Auction Date

Wed 12/11/2025

Auction Time

09:30

Auction Venue

Live Stream

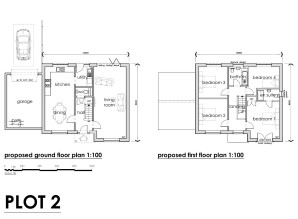
A Plot of Land Measuring Approximately 1,012 sq m (10,889 sq ft) Offered With Planning Permission for the Erection of Two Dwellings

The land comprises a plot of land measuring approximately 1,012 sq m (10,889 sq ft).

Tenure

Freehold

Location

The land is situated on a residential road close to local shops and amenities. The open spaces of Gores Park are within easy reach. Transport links are provided by the A37.

Planning

Bath & North East Somerset Borough Council granted the following planning permission (ref: 24/04291/OUT) on 26th November 2024 : 'Demolition of Existing Garage and Shed. Construction of 2no new dwellings with parking and associated works on land adjacent to 1 Townsend'.

The site area depicted within the plan in the auction particulars is for indicative purposes only. Additionally, any measurements stated may not be exact. Some or all of the plot may comprise adopted highway land and if the site has trees, there may be Tree Preservation Orders in place. Buyers should rely on their own enquiries with regard to precise measurements, any consents or rights over the land and any possible development potential or alternative uses for this site.

Services

Interested parties are requested to make their own enquiries to the relevant authorities as to the availability of services.

Important Notice to Prospective Buyers:

We draw your attention to the Special Conditions of Sale within the Legal Pack, referring to other charges in addition to the purchase price which may become payable. Such costs may include Search Fees, reimbursement of Sellers costs and Legal Fees, and Transfer Fees amongst others.

Additional Fees

Administration Charge - Purchasers will be required to pay an administration fee of £1,500 inc VAT

Disbursements - Please see the legal pack for any disbursements listed that may become payable by the purchaser on completion.

View Larger Map

Disclaimer: The map preview provided above is for general guidance only and may not accurately reflect the exact location or surrounding buildings. Prospective buyers and interested parties are strongly advised to independently verify the precise location and surroundings before bidding.