For Sale By Auction | 09:30, 12 November 2025 | Lot 48A

Victory Cottage, Sandhurst Lane, Gloucester, Gloucestershire, GL2 9AQ

*Guide | £140,000+ (plus fees)

  • Detached House
  • 3 Bedrooms
  • Tenure: Freehold

Call the team on 020 7625 9007 for more information

Auction Date

Wed 12/11/2025

Auction Time

09:30

Auction Venue

Live Stream

Viewing Times:

Tue 4 Nov

12:00-12:30

Thu 6 Nov

12:00-12:30

Sat 8 Nov

10:00-10:30

Tue 11 Nov

12:00-12:30

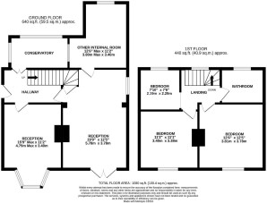
A Vacant Seven Room Detached House

The property comprises a seven room detached house arranged over ground and first floors. The property requires a program of refurbishment.

Tenure

Freehold

10 Week Completion Available

Location

The property is situated on a residential road close to local shops and amenities. The open spaces of Plock Court Playing Field are within easy reach. Transport links are provided by Gloucester rail station.

Accommodation

Ground Floor Four Reception Rooms First Floor Three Bedrooms Bathroom

Exterior

The property benefits from a front garden and a off street parking and a shed to the rear.

Energy Efficiency Rating (EPC)

Current Rating D

Services

Interested parties are requested to make their own enquiries to the relevant authorities as to the availability of services.

Important Notice to Prospective Buyers:

We draw your attention to the Special Conditions of Sale within the Legal Pack, referring to other charges in addition to the purchase price which may become payable. Such costs may include Search Fees, reimbursement of Sellers costs and Legal Fees, and Transfer Fees amongst others.

Additional Fees

Administration Charge - Purchasers will be required to pay an administration fee of £1,500 inc VAT

Disbursements - Please see the legal pack for any disbursements listed that may become payable by the purchaser on completion.

View Larger Map

Disclaimer: The map preview provided above is for general guidance only and may not accurately reflect the exact location or surrounding buildings. Prospective buyers and interested parties are strongly advised to independently verify the precise location and surroundings before bidding.