For Sale By Auction | 09:30, 10 December 2025 | Lot 65

Ground Floor Flat, 52 Strahan Road, Bow, London, E3 5DB

*Guide | £315,000+ (plus fees)

  • Flat
  • 1 Bedroom
  • Tenure: Leasehold. The property will be held on a new 125 year lease.

Call the team on 020 7625 9007 for more information

Auction Date

Wed 10/12/2025

Auction Time

09:30

Auction Venue

Live Stream

Viewing Times:

Wed 26 Nov

10:00-10:30

Fri 28 Nov

10:00-10:30

Tue 2 Dec

10:00-10:30

Thu 4 Dec

10:00-10:30

Sat 6 Dec

12:00-12:30

Mon 8 Dec

10:00-10:30

Mon 15 Dec

11:00-11:30

A Vacant Ground Floor One Bedroom Flat

The property comprises a ground floor one bedroom flat situated within a mid terrace building arranged over ground and first floors.

Tenure

Leasehold. The property will be held on a new 125 year lease.

Location

The property is situated on a residential road close to local shops and amenities. The open spaces of Mile End Park are within easy reach. Transport links are provided by Mile End underground station (Central line) and Cambridge Heath overground station.

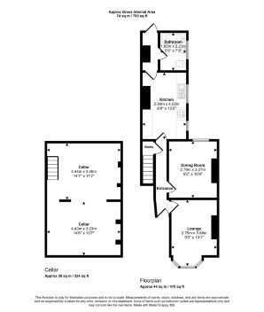
Accommodation

Ground Floor Reception Room Kitchen Bedroom Bathroom G.I.A Approximately 43 sq m (463 sq ft)

Exterior

The property benefits from a private rear garden.

Energy Efficiency Rating (EPC)

Current Rating D

Services

Interested parties are requested to make their own enquiries to the relevant authorities as to the availability of services.

Important Notice to Prospective Buyers:

We draw your attention to the Special Conditions of Sale within the Legal Pack, referring to other charges in addition to the purchase price which may become payable. Such costs may include Search Fees, reimbursement of Sellers costs and Legal Fees, and Transfer Fees amongst others.

Additional Fees

Administration Charge - Purchasers will be required to pay an administration fee of £1,800 inc VAT

Disbursements - Please see the legal pack for any disbursements listed that may become payable by the purchaser on completion.

View Larger Map

Disclaimer: The map preview provided above is for general guidance only and may not accurately reflect the exact location or surrounding buildings. Prospective buyers and interested parties are strongly advised to independently verify the precise location and surroundings before bidding.