For Sale By Auction | 09:30, 10 December 2025 | Lot 23

Building B, Terminal House, Station Approach, Shepperton, Middlesex, TW17 8AS

*Guide | £1,200,000+ (plus fees)

  • Office
  • Tenure: Freehold

Call the team on 020 7625 9007 for more information

Auction Date

Wed 10/12/2025

Auction Time

09:30

Auction Venue

Live Stream

Viewing Times:

Wed 3 Dec

11:00-11:30

Tue 9 Dec

11:00-11:30

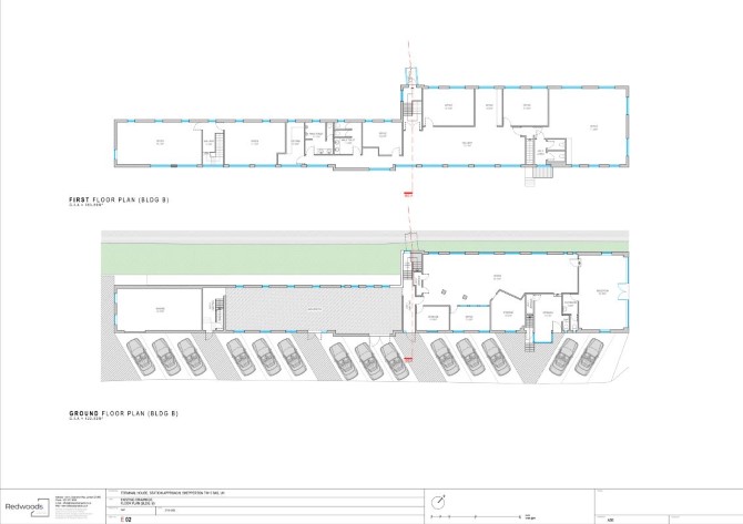
A Substantial Office Building Offered With Planning Permission to be Converted into Seventeen Flats. Offered with Vacant Possession.

The property comprises a substantial office building arranged over ground and first floors.

Tenure

Freehold

Location

The property is situated on a mixed use road close to local shops and amenities. The open spaces of Manor Park are within easy reach. Transport links are provided by Shepperton rail station.

Planning

Spelthorne District Council granted the following planning permission (ref: 25/00437/PAP) on 23rd May 2025 : 'change of use from commercial space (Class E) to residential 17 studio flats (Class C3)'.

Proposed Accommodation

Ground Floor Eight Flats G.I.A Approximately 489 sq m (5,240 sq ft) First Floor Nine Flats G.I.A Approximately 364 sq m (3,917 sq ft)

Energy Efficiency Rating (EPC)

Current Rating C

Services

Interested parties are requested to make their own enquiries to the relevant authorities as to the availability of services.

Important Notice to Prospective Buyers:

We draw your attention to the Special Conditions of Sale within the Legal Pack, referring to other charges in addition to the purchase price which may become payable. Such costs may include Search Fees, reimbursement of Sellers costs and Legal Fees, and Transfer Fees amongst others.

Additional Fees

Administration Charge - Purchasers will be required to pay an administration fee of £1,500 inc VAT

Disbursements - Please see the legal pack for any disbursements listed that may become payable by the purchaser on completion.

View Larger Map

Disclaimer: The map preview provided above is for general guidance only and may not accurately reflect the exact location or surrounding buildings. Prospective buyers and interested parties are strongly advised to independently verify the precise location and surroundings before bidding.