For Sale By Auction | 14:00, 28 January 2026 | Lot 5

8 & 8A Bell Row, High Street, Baldock, Hertfordshire, SG7 6AP

Sold £168,000

  • Restaurant
  • Tenure: Freehold

Call the team on 020 7625 9007 for more information

Auction Date

Wed 28/01/2026

Auction Time

14:00

Auction Venue

Live Stream

A Commercial Building Arranged to Provide a Lower Ground and Ground Floor Restaurant with First Floor Ancillary Space Fully Let Producing £14,000 Per Annum. Potential to Convert Upper Floor to Residential Use (Subject to Obtaining all Relevant Consents)

The property comprises a commercial building arranged to provide a lower ground and ground floor restaurant with first floor ancillary space.

Tenure

Freehold

Location

The property is situated on a mixed use road close to local shops and amenities. The open spaces of Avenue Park Baldock are within easy reach. Transport links are provided by Baldock rail station.

Accommodation

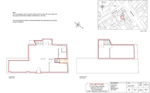
Lower Ground and Ground Floors Restaurant First Floor Ancillary Space Total G.I.A Approximately 1,798 sq ft

Tenancy

The property is subject to a lease expiring 25th November 2025 at a rent of £14,000 per annum (Holding Over). Negotiations ongoing to extend lease for a further 15 years.

Rent Deposit Held - £2,250

VAT

VAT is applicable (TOGC available)

Energy Efficiency Rating (EPC)

Current Rating D

Services

Interested parties are requested to make their own enquiries to the relevant authorities as to the availability of services.

Important Notice to Prospective Buyers:

We draw your attention to the Special Conditions of Sale within the Legal Pack, referring to other charges in addition to the purchase price which may become payable. Such costs may include Search Fees, reimbursement of Sellers costs and Legal Fees, and Transfer Fees amongst others.

Additional Fees

Administration Charge - Purchasers will be required to pay an administration fee of £1,800 inc VAT

Disbursements - Please see the legal pack for any disbursements listed that may become payable by the purchaser on completion.

View Larger Map

Disclaimer: The map preview provided above is for general guidance only and may not accurately reflect the exact location or surrounding buildings. Prospective buyers and interested parties are strongly advised to independently verify the precise location and surroundings before bidding.