For Sale By Auction | 09:30, 11 February 2026 | Lot 9

74 Drakefell Road, Nunhead, London, SE14 5SJ

Sold £814,000

  • Semi-Detached House
  • 4 Bedrooms
  • Tenure: Freehold

Call the team on 020 7625 9007 for more information

Auction Date

Wed 11/02/2026

Auction Time

09:30

Auction Venue

Live Stream

Viewing Times:

Wed 28 Jan

14:00-14:30

Fri 30 Jan

14:00-14:30

Tue 3 Feb

14:00-14:30

Thu 5 Feb

14:00-14:30

Sat 7 Feb

10:45-11:15

Mon 9 Feb

14:00-14:30

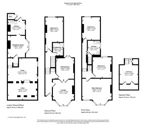
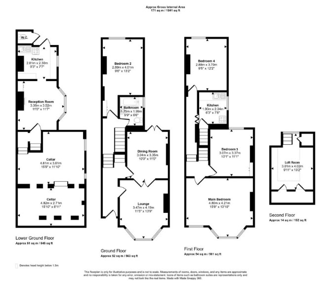
A Four Bedroom Semi Detached House

The property comprises a four bedroom semi detached house arranged over lower ground, ground and two upper floors.

Tenure

Freehold

Location

The property is situated on a residential road close to local shops and amenities. The open spaces of Telegraph Hill Upper Park are within easy reach. Transport links are provided by Nunhead rail station.

Accommodation

Lower Ground Floor Reception Room Kitchen Two Cellar Rooms WC Ground Floor Two Reception Rooms Bedroom Bathroom First Floor Three Bedrooms Kitchen Second Floor Loft Room

Exterior

The property benefits from a rear garden.

Energy Efficiency Rating (EPC)

Current Rating G

Services

Interested parties are requested to make their own enquiries to the relevant authorities as to the availability of services.

Important Notice to Prospective Buyers:

We draw your attention to the Special Conditions of Sale within the Legal Pack, referring to other charges in addition to the purchase price which may become payable. Such costs may include Search Fees, reimbursement of Sellers costs and Legal Fees, and Transfer Fees amongst others.

Additional Fees

Administration Charge - Purchasers will be required to pay an administration fee of £1,800 inc VAT

Disbursements - Please see the legal pack for any disbursements listed that may become payable by the purchaser on completion.

View Larger Map

Disclaimer: The map preview provided above is for general guidance only and may not accurately reflect the exact location or surrounding buildings. Prospective buyers and interested parties are strongly advised to independently verify the precise location and surroundings before bidding.