For Sale By Auction | 14:00, 04 March 2026 | Lot 36

Land to the rear of 175 Queens Road, Croydon, Surrey, CR0 2PX

*Guide | £65,000+ (plus fees)

  • Land
  • Tenure: Freehold

Call the team on 020 7625 9007 for more information

Auction Date

Wed 04/03/2026

Auction Time

14:00

Auction Venue

Unknown

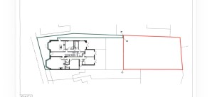
A Large Plot of Land Measuring Approximately 318 sq m (3,423 sq ft). Offered With Planning Permission for the Erection of a Detached Five Bedroom House

Tenure

Freehold

Location

The land is situated on a residential road close to local shops and amenities. The open spaces of Whitehorse Road Recreation Ground are within easy reach. Transport links are provided by Thornton Heath rail station.

Planning

Croydon Borough Council granted the following planning permission (ref: 24/02994/FUL) on 13th June 2025 : 'Creation of detached single family dwelling house, including associated car parking, bicycle storage, hard and soft landscaping'.

Proposed Accommodation

Ground Floor Two Reception Rooms (One with Open-Plan Kitchen) Utility Room WC First Floor Three Bedrooms (One with En-Suite) Bathroom Second Floor Two Bedrooms Bathroom

Possible potential for alternative planning schemes or to add additional housing units (STPP).

Services

Interested parties are requested to make their own enquiries to the relevant authorities as to the availability of services.

Important Notice to Prospective Buyers:

We draw your attention to the Special Conditions of Sale within the Legal Pack, referring to other charges in addition to the purchase price which may become payable. Such costs may include Search Fees, reimbursement of Sellers costs and Legal Fees, and Transfer Fees amongst others.

Additional Fees

Administration Charge - Purchasers will be required to pay an administration fee of £1,800 inc VAT

Disbursements - Please see the legal pack for any disbursements listed that may become payable by the purchaser on completion.

View Larger Map

Disclaimer: The map preview provided above is for general guidance only and may not accurately reflect the exact location or surrounding buildings. Prospective buyers and interested parties are strongly advised to independently verify the precise location and surroundings before bidding.