For Sale By Auction | 09:30, 22 April 2026 | Lot 241

4 Highfield Road, Newbold, Derbyshire, S41 7EY

*Guide | £50,000 - £80,000 (plus fees)

  • Land
  • Tenure: Freehold

Call the team on 020 7625 9007 for more information

Auction Date

Wed 22/04/2026

Auction Time

09:30

Auction Venue

Live Stream

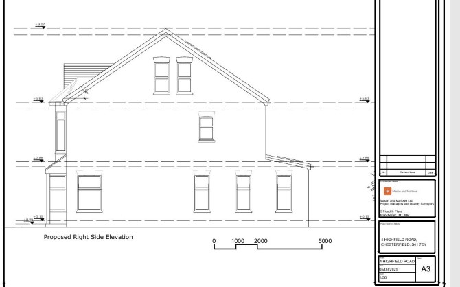
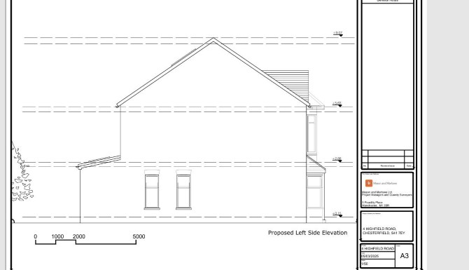
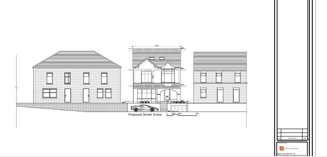
A Plot of Land Measuring Approximately 350 sq m (3,767 sq ft). Offered With Planning Permission for the Erection of a Four Bedroom Detached House

The lot comprises a plot of land measuring approximately 350 sq m (3,767 sq ft).

Tenure

Freehold

Location

The land is situated on a residential road close to local shops and amenities. The open spaces of Edinburgh Park are within easy reach. Transport links are provided by Chesterfield rail station.

Planning

Chesterfield Borough Council granted the following planning permission (ref: CHE/25/00103/FUL) on 6th March 2025 : 'Erection of a 4-bedroom detached self-build dwelling'.

The site area depicted within the plan in the auction particulars is for indicative purposes only. Additionally, any measurements stated may not be exact. Some or all of the plot may comprise adopted highway land and if the site has trees, there may be Tree Preservation Orders in place. Buyers should rely on their own enquiries with regard to precise measurements, any consents or rights over the land and any possible development potential or alternative uses for this site.

Services

Interested parties are requested to make their own enquiries to the relevant authorities as to the availability of services.

Important Notice to Prospective Buyers:

We draw your attention to the Special Conditions of Sale within the Legal Pack, referring to other charges in addition to the purchase price which may become payable. Such costs may include Search Fees, reimbursement of Sellers costs and Legal Fees, and Transfer Fees amongst others.

Additional Fees

Administration Charge - Purchasers will be required to pay an administration fee of £1,800 inc VAT

Disbursements - Please see the legal pack for any disbursements listed that may become payable by the purchaser on completion.

View Larger Map

Disclaimer: The map preview provided above is for general guidance only and may not accurately reflect the exact location or surrounding buildings. Prospective buyers and interested parties are strongly advised to independently verify the precise location and surroundings before bidding.