For Sale By Auction | 09:30, 22 April 2026 | Lot 117

73 Copperfield, Chigwell, Essex, IG7 5NH

*Guide | £165,000+ (plus fees)

  • Flat
  • 2 Bedrooms
  • Tenure: Leasehold. The property is held on a 125 year lease from 10th December 1997 (thus approximately 96 years unexpired).

Call the team on 020 7625 9007 for more information

Auction Date

Wed 22/04/2026

Auction Time

09:30

Auction Venue

Live Stream

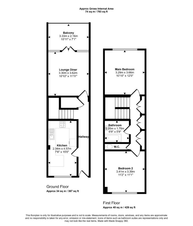
A Vacant Raised Ground and First Floor Two Bedroom Split Level Maisonette

The property comprises a raised ground and first floor two bedroom split level maisonette situated within a purpose built block arranged over ground and four upper floors. We understand the building is of non-standard construction.

Tenure

Leasehold. The property is held on a 125 year lease from 10th December 1997 (thus approximately 96 years unexpired).

Location

The property is situated on a residential road close to local shops and amenities. The open spaces of Claybury Park are within easy reach. Transport links are provided by Hainault underground station (Central line).

Accommodation

Raised Ground Floor Reception Room Kitchen First Floor Two Bedrooms Bathroom Separate WC

Exterior

The property benefits from a balcony.

Energy Efficiency Rating (EPC)

Current Rating C

Services

Interested parties are requested to make their own enquiries to the relevant authorities as to the availability of services.

Important Notice to Prospective Buyers:

We draw your attention to the Special Conditions of Sale within the Legal Pack, referring to other charges in addition to the purchase price which may become payable. Such costs may include Search Fees, reimbursement of Sellers costs and Legal Fees, and Transfer Fees amongst others.

Additional Fees

Administration Charge - Purchasers will be required to pay an administration fee of £1,800 inc VAT

Disbursements - Please see the legal pack for any disbursements listed that may become payable by the purchaser on completion.

View Larger Map

Disclaimer: The map preview provided above is for general guidance only and may not accurately reflect the exact location or surrounding buildings. Prospective buyers and interested parties are strongly advised to independently verify the precise location and surroundings before bidding.