For Sale By Auction | 09:30, 22 April 2026 | Lot 53

8 Broadlands Avenue, Streatham Hill, London, SW16 1NA

*Guide | £1,100,000+ (plus fees)

  • Detached House
  • 9 Bedrooms
  • Tenure: Freehold

Call the team on 020 7625 9007 for more information

Auction Date

Wed 22/04/2026

Auction Time

09:30

Auction Venue

Live Stream

A Nine Bedroom Detached HMO Part Let Producing £45,360 Per Annum

The property comprises a nine bedroom detached house arranged over ground and two upper floors.

Tenure

Freehold

Location

The property is situated on a residential road close to local shops and amenities. The open spaces of Tooting Commons are within easy reach. Transport links are provided by Streatham Hill rail station.

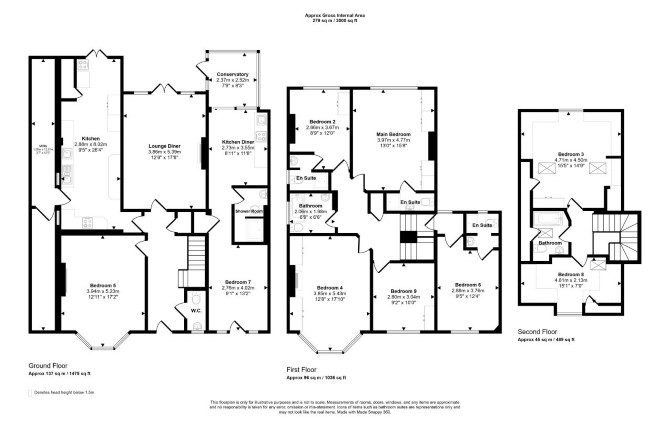
Accommodation

Ground Floor Reception Room Kitchen/Diner Conservatory Two Letting Rooms Bathroom Separate WC First Floor Five Letting Rooms (Three with En-Suite) Bathroom Second Floor Two Letting Rooms Bathroom

Exterior

The property benefits from a rear garden and off street parking.

Tenancy

The property is subject to individual tenancies at a combined rent of £3,780 per calendar month.

Energy Efficiency Rating (EPC)

Current Rating E

Services

Interested parties are requested to make their own enquiries to the relevant authorities as to the availability of services.

Important Notice to Prospective Buyers:

We draw your attention to the Special Conditions of Sale within the Legal Pack, referring to other charges in addition to the purchase price which may become payable. Such costs may include Search Fees, reimbursement of Sellers costs and Legal Fees, and Transfer Fees amongst others.

Additional Fees

Administration Charge - Purchasers will be required to pay an administration fee of £1,800 inc VAT

Disbursements - Please see the legal pack for any disbursements listed that may become payable by the purchaser on completion.

View Larger Map

Disclaimer: The map preview provided above is for general guidance only and may not accurately reflect the exact location or surrounding buildings. Prospective buyers and interested parties are strongly advised to independently verify the precise location and surroundings before bidding.