For Sale By Auction | 09:30, 22 April 2026 | Lot 55

2 Broomhill Road, Orpington, Kent, BR6 0EW

*Guide | £100,000 - £200,000 (plus fees)

  • Flat
  • 3 Bedrooms
  • Tenure: Leasehold. The property is held on a 125 year lease from 30th January 2002 (thus approximately 100 years unexpired).

Call the team on 020 7625 9007 for more information

Auction Date

Wed 22/04/2026

Auction Time

09:30

Auction Venue

Live Stream

A Vacant Ground, First and Second Floor Three Bedroom Split Level Maisonette

The property comprises a ground, first and second floor three bedroom split level maisonette situated within a detached building arranged over ground, first and second floors.

Tenure

Leasehold. The property is held on a 125 year lease from 30th January 2002 (thus approximately 100 years unexpired).

Location

The property is situated on a residential road close to local shops and amenities. The open spaces of Priory Gardens are within easy reach. Transport links are provided by Orpington rail station.

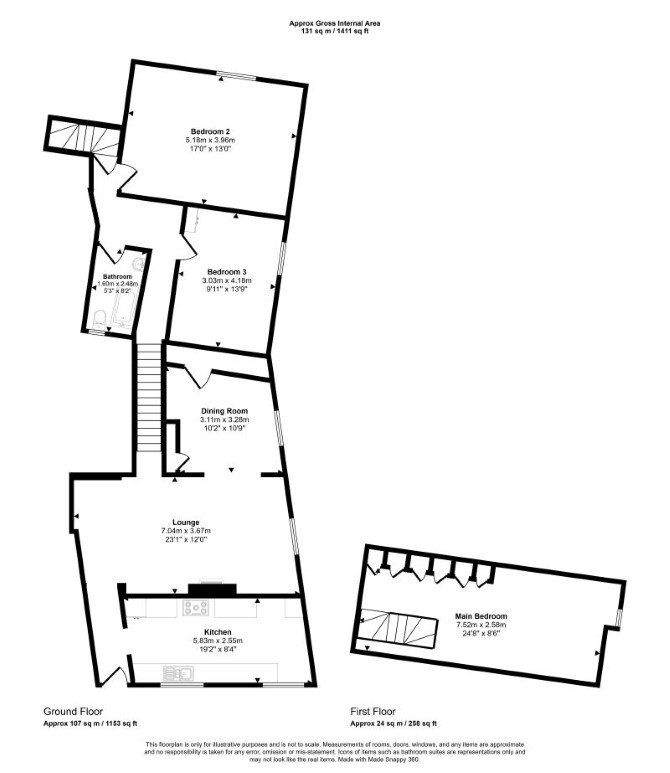
Accommodation

Ground Floor Two Reception Rooms Kitchen First Floor Two Bedrooms Bathroom Second Floor Bedroom GIA approx 105 Sq m

Exterior

The property benefits from a private rear courtyard garden.

Energy Efficiency Rating (EPC)

Current Rating D

Services

Interested parties are requested to make their own enquiries to the relevant authorities as to the availability of services.

Important Notice to Prospective Buyers:

We draw your attention to the Special Conditions of Sale within the Legal Pack, referring to other charges in addition to the purchase price which may become payable. Such costs may include Search Fees, reimbursement of Sellers costs and Legal Fees, and Transfer Fees amongst others.

Additional Fees

Administration Charge - Purchasers will be required to pay an administration fee of £1,800 inc VAT

Disbursements - Please see the legal pack for any disbursements listed that may become payable by the purchaser on completion.

View Larger Map

Disclaimer: The map preview provided above is for general guidance only and may not accurately reflect the exact location or surrounding buildings. Prospective buyers and interested parties are strongly advised to independently verify the precise location and surroundings before bidding.