For Sale By Auction | 09:30, 27 May 2026

32-34 Bridge Street, Swindon, Wiltshire, SN1 1BP

*Guide | £300,000+ (plus fees)

  • Pub
  • Tenure: Freehold

Call the team on 020 7625 9007 for more information

Auction Date

Wed 27/05/2026

Auction Time

09:30

Auction Venue

Live Stream

A Vacant Fire Damaged Mid Terrace Former Public House. Offered With Planning Permission for the Demolition of the Existing Building and the Erection of a Six Storey Mixed Use Building to Provide a Ground Floor Commercial Unit and 23 Flats.

The property comprises a fire damaged mid terrace former public house arranged over ground and first floors.

Tenure

Freehold

Location

The property is situated on a mixed use road close to Swindon City Centre. Nearby multiples include; Tesco Express, Boots and John Lewis. The open spaces of The Park are within easy reach. Transport links are provided by Swindon rail station.

Planning

Swindon Borough Council granted the following planning permission (ref: S/OUT/24/1135/AMMY) on 31st March 2025 : 'Application for Outline Planning Permission for the demolition of the existing building and erection of a 6 storey, mixed use building containing ground floor commercial use and 23 no. self-contained residential units from 1st to 5th floor'.

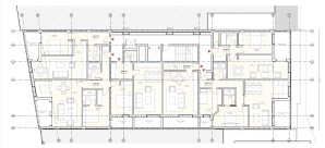
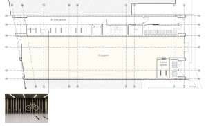
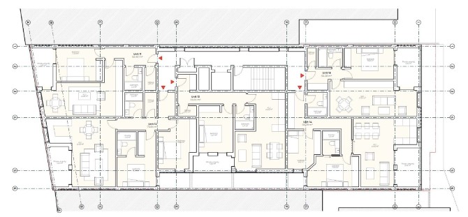
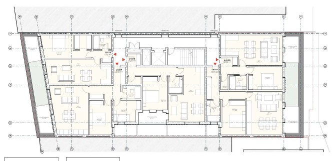
Proposed Accommodation

Ground Floor Commercial Unit First Floor 2 x One Bedroom Flats 2 x Two Bedroom Flats First and Second Floors (Split Level) 2 x One Bedroom Flats Second Floor 2 x One Bedroom Flats 2 x Two Bedroom Flats Third Floor 3 x One Bedroom Flats 2 x Two Bedroom Flats Fourth Floor 4 x One Bedroom Flats 1 x Two Bedroom Flat Fifth Floor 1 x One Bedroom Flat 1 x Two Bedroom Flat 1 x Three Bedroom Flat

Services

Interested parties are requested to make their own enquiries to the relevant authorities as to the availability of services.

Important Notice to Prospective Buyers:

We draw your attention to the Special Conditions of Sale within the Legal Pack, referring to other charges in addition to the purchase price which may become payable. Such costs may include Search Fees, reimbursement of Sellers costs and Legal Fees, and Transfer Fees amongst others.

Additional Fees

Administration Charge - Purchasers will be required to pay an administration fee of £1,800 inc VAT

Disbursements - Please see the legal pack for any disbursements listed that may become payable by the purchaser on completion.

View Larger Map

Disclaimer: The map preview provided above is for general guidance only and may not accurately reflect the exact location or surrounding buildings. Prospective buyers and interested parties are strongly advised to independently verify the precise location and surroundings before bidding.