Withdrawn | Lot 36

Garden Flat, 3 Cutlers Terrace, 98 Balls Pond Road, Islington, London, N1 4AJ

Withdrawn

  • Maisonette
  • 3 Bedrooms
  • Tenure: Leasehold. The property is held on a 125 year lease from 25th March 2001 (thus approximately 110 years unexpired).

Call the team on 020 7625 9007 for more information

Auction Date

Wed 14/09/2016

Auction Time

12:00

Auction Venue

The Cumberland, Great Cumberland Place, London, W1H 7DL

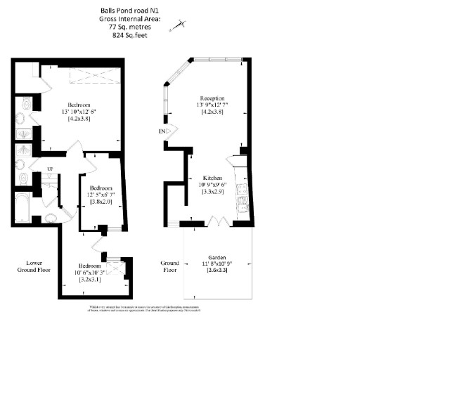
A Vacant Lower Ground and Ground Floor Three Bedroom Maisonette

The property comprises a lower ground floor and ground floor three bedroom maisonette situated within a converted building arranged over lower ground and three upper floors.

Tenure

Leasehold. The property is held on a 125 year lease from 25th March 2001 (thus approximately 110 years unexpired).

Location

The property is situated in the North London area of Islington close to local shops and amenities. The open spaces of King Henry's Walk Garden are within easy reach. Transport links are provided by Dalston Junction & Dalston Kingsland rail stations.

Accommodation

Ground Floor Open Plan Kitchen/Diner Lower Ground Floor Master Bedroom with En-Suite Shower Room, WC & wash basin Bedroom with En-Suite Shower Room, WC & wash basin Bedroom/Study Shower Room with WC & wash basin

Lot Type

Residential

Viewing Details

Thursday 8th September - 12:00-12:30 Monday 12th September - 12:00-12:30

Services

Interested parties are requested to make their own enquiries to the relevant authorities as to the availability of services.

Important Notice to Prospective Buyers:

We draw your attention to the Special Conditions of Sale within the Legal Pack, referring to other charges in addition to the purchase price which may become payable. Such costs may include Search Fees, reimbursement of Sellers costs and Legal Fees, and Transfer Fees amongst others.

Additional Fees

Administration Charge - Purchasers will be required to pay an administration fee of £1,500 inc VAT

Disbursements - Please see the legal pack for any disbursements listed that may become payable by the purchaser on completion.

View Larger Map

Disclaimer: The map preview provided above is for general guidance only and may not accurately reflect the exact location or surrounding buildings. Prospective buyers and interested parties are strongly advised to independently verify the precise location and surroundings before bidding.