For Sale By Auction | 12:00, 14 September 2016 | Lot 85

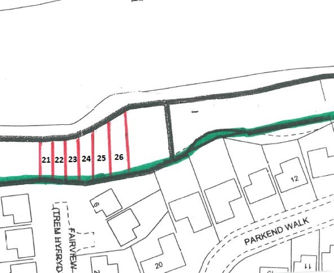
Plot 25 at Summerfields, Esless Park, Rhostyllen, Wrexham, Clwyd, LL14 4EU

Sold £2

  • Land
  • Tenure: Freehold

Call the team on 020 7625 9007 for more information

Auction Date

Wed 14/09/2016

Auction Time

12:00

Auction Venue

The Cumberland, Great Cumberland Place, London, W1H 7DL

A Plot of Land close to Existing Residential Housing. Suitable for a Variety of Uses (subject to obtaining all necessary consents). The Full Sales Price will be Donated to Charity by the Vendor.

The plot forms part of a larger 2.77 acre site. The plots are accessed by foot via a right of way as shown in green on the plan which leads down to Woodside Court.

Tenure

Freehold

2 Line Address

False

Location

The plot is situated to the south of the Black Lion Public House close to the houses on Fairview amongst the residential housing estate known as Summerfields.

Viewing Details

Open Site

Services

Interested parties are requested to make their own enquiries to the relevant authorities as to the availability of services.

Important Notice to Prospective Buyers:

We draw your attention to the Special Conditions of Sale within the Legal Pack, referring to other charges in addition to the purchase price which may become payable. Such costs may include Search Fees, reimbursement of Sellers costs and Legal Fees, and Transfer Fees amongst others.

Additional Fees

Administration Charge - Purchasers will be required to pay an administration fee of £1,500 inc VAT

Disbursements - Please see the legal pack for any disbursements listed that may become payable by the purchaser on completion.

View Larger Map

Disclaimer: The map preview provided above is for general guidance only and may not accurately reflect the exact location or surrounding buildings. Prospective buyers and interested parties are strongly advised to independently verify the precise location and surroundings before bidding.