Sold Prior | Lot 10

Flat 17 Innerd Court, 1 Clarke Close, Croydon, Surrey, CR0 2NQ

Sold Prior

  • Flat
  • 1 Bedroom
  • Tenure: Leasehold. The property is held on a 125 year lease from 24/06/2006 (thus approximately 114 years unexpired).

Call the team on 020 7625 9007 for more information

Auction Date

Wed 13/12/2017

Auction Time

12:00

Auction Venue

London Marriott Hotel Regents Park, 128 King Henry’s Road, London, NW3 3ST

A Vacant Ground Floor One Bedroom Flat

Tenure

Leasehold. The property is held on a 125 year lease from 24/06/2006 (thus approximately 114 years unexpired).

Location

The property is situated on a quiet residential road close to shops and local amenities. The open spaces of Whitehorse Road Recreation Ground are within easy reach. Transport links are provided by both Thornton Heath and Selhurst, West Croydon and East Croydon rail stations. Croydon University Hospital is approximately half a mile from the property.

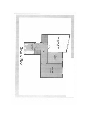
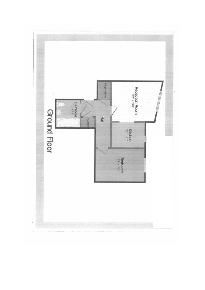
Accommodation

Ground Floor Reception Room Bedroom Kitchen Bathroom with WC & wash basin

Exterior

The property benefits from communal gardens and residents parking.

Viewing Details

SOLD PRIOR

Addendum

Sold Prior

Services

Interested parties are requested to make their own enquiries to the relevant authorities as to the availability of services.

Important Notice to Prospective Buyers:

We draw your attention to the Special Conditions of Sale within the Legal Pack, referring to other charges in addition to the purchase price which may become payable. Such costs may include Search Fees, reimbursement of Sellers costs and Legal Fees, and Transfer Fees amongst others.

Additional Fees

Administration Charge - Purchasers will be required to pay an administration fee of £1,500 inc VAT

Disbursements - Please see the legal pack for any disbursements listed that may become payable by the purchaser on completion.

View Larger Map

Disclaimer: The map preview provided above is for general guidance only and may not accurately reflect the exact location or surrounding buildings. Prospective buyers and interested parties are strongly advised to independently verify the precise location and surroundings before bidding.