Withdrawn | Lot 22

190A Church Road, Willesden, London, NW10 9NP

Withdrawn

  • Flat
  • 3 Bedrooms
  • Tenure: Leasehold. There are approximately 93 years unexpired on the lease.

Call the team on 020 7625 9007 for more information

Auction Date

Wed 13/12/2017

Auction Time

12:00

Auction Venue

London Marriott Hotel Regents Park, 128 King Henry’s Road, London, NW3 3ST

A Newly Refurbished First Floor Two/Three Bedroom Flat Offered With Vacant Possession

The property comprises a two bedroom first floor flat above a commercial premises situated within a terraced building arranged over ground and two upper floors.

Tenure

Leasehold. There are approximately 93 years unexpired on the lease.

Location

The property is situated in the North West London area of Willesden. The open spaces of Gibbons Recreation Grounds are within easy reach. Transport links are provided by both Neasden and Dollis Hill underground stations (Jubilee line).

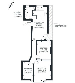
Accommodation

First Floor Reception Room with open plan Kitchen Two Bedrooms Second Reception Room/Third Bedroom Bathroom with WC and basin

Exterior

The property benefits from a private roof terrace

Approximate GIA 667.5 sq ft (62 sq m)

Viewing Details

Open House Viewings: Monday 27th November 12:30-13:00 Wednesday 29th November 14:00-14:30 Monday 4th December 14:00-14:30 Thursdaqy 7th December 14:00-14:30 Monday 11th December 14:00-14:30 If you require any further information in the meantime please contact Samuel Morris on 020 7625 9007 - samuel@auctionhouselondon.co.uk

Services

Interested parties are requested to make their own enquiries to the relevant authorities as to the availability of services.

Important Notice to Prospective Buyers:

We draw your attention to the Special Conditions of Sale within the Legal Pack, referring to other charges in addition to the purchase price which may become payable. Such costs may include Search Fees, reimbursement of Sellers costs and Legal Fees, and Transfer Fees amongst others.

Additional Fees

Administration Charge - Purchasers will be required to pay an administration fee of £1,500 inc VAT

Disbursements - Please see the legal pack for any disbursements listed that may become payable by the purchaser on completion.

View Larger Map

Disclaimer: The map preview provided above is for general guidance only and may not accurately reflect the exact location or surrounding buildings. Prospective buyers and interested parties are strongly advised to independently verify the precise location and surroundings before bidding.